For Sale2 Bedroom Flat in Battersea, London, SW11£550,000

Battersea, London, SW11

2 Bedroom Flat for sale
£550,000
Property Type
Flat
Bedrooms
× 2
Bathrooms
× 1
Receptions
× 1
Tenure
Freehold
Price
£550,000

Description

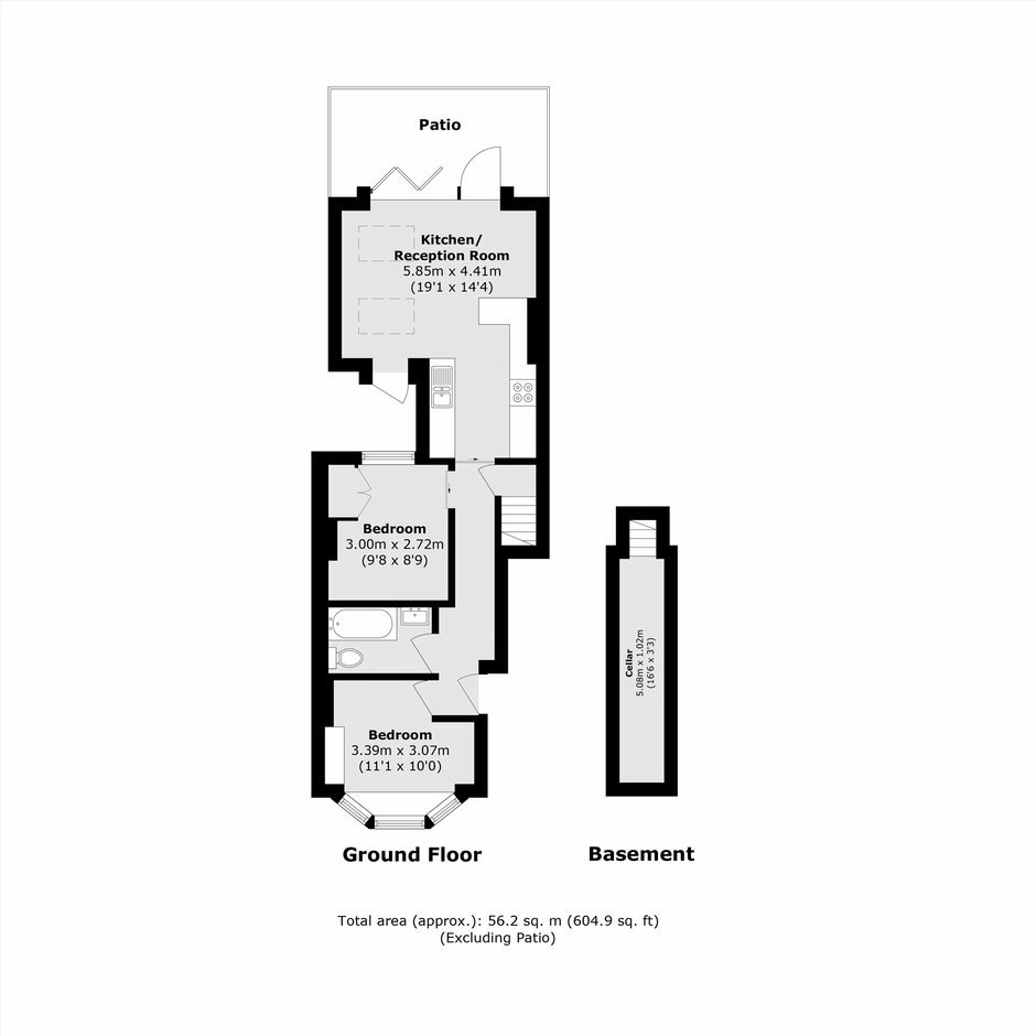
An exceptional two double bedroom Victorian conversion. Comprising a large open plan reception/kitchen, two double bedrooms, family bathroom and a private garden. The property also benefits from owning the full freehold and is being offered chain free. Shuttleworth Road is a sought after street near the River Thames. Located conveniently for Battersea Park as well as easy access to the Kings Road in Chelsea. Clapham Junction railway station is also a short walk away. Tenure: Leasehold Lease Years Remaining: 141 Service Charge: £0 (Yearly) Annual Ground Rent: £0 Council Tax Band: D Information contained within this listing is for guidance only and should be checked and confirmed (prior to proceeding).

Battersea, London, SW11 on Map