For Sale2 Bedroom Flat in Spurling Road, London, SE22£775,000

Spurling Road, London, SE22

2 Bedroom Flat for sale
£775,000
Property Type
Flat
Bedrooms
× 2
Bathrooms
× 1
Receptions
× 1
Tenure
Share of freehold
Price
£775,000

Key Features

  • • private south west facing garden
  • • central location
  • • fully refurbished
  • • victorian conversion

Description

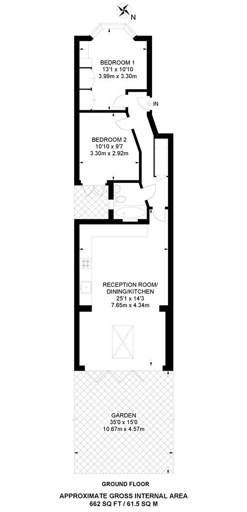
Located in the heart of East Dulwich, this beautifully presented ground floor flat offers a stylish, contemporary interior and a private rear garden — a rare and valuable feature in this popular South London neighbourhood. Inside, the home boasts a bright and spacious living area with tasteful modern décor throughout. The sleek, fully fitted kitchen includes integrated appliances and generous storage, making it ideal for both everyday living and entertaining. Two well-proportioned bedrooms offer flexibility, whether you're looking for a guest room, home office, or growing family space. The modern bathroom is finished to a high standard with quality fixtures and a clean, elegant design. The private garden provides a peaceful retreat and a perfect space for outdoor dining, relaxing, or gardening — extending your living area into the outdoors. Set within the sought-after SE22 postcode, the property is just a short stroll from the vibrant Lordship Lane, home to a wide range of independent shops, popular cafes, restaurants, pubs, and a weekly market. You're also close to green spaces such as Dulwich Park and Peckham Rye Common, ideal for outdoor activities and leisure. For families, the property falls within the catchment area of several highly regarded primary and secondary schools, including Harris Primary East Dulwich, Heber Primary, and The Charter School East Dulwich. Transport links are excellent, with East Dulwich station offering direct services to London Bridge, and nearby bus routes providing access to central London and surrounding areas. AGENT NOTES: Mobile phone coverage: EE (Good outdoor and in-home, Good outdoor, Good outdoor and variable in-home, Variable outdoor, Poor to none outdoor) Three (Good outdoor and in-home, Good outdoor, Good outdoor and variable in-home, Variable outdoor, Poor to none outdoor) O2 (Good outdoor and in-home, Good outdoor, Good outdoor and variable in-home, Variable outdoor, Poor to none outdoor) Vodaphone (Good outdoor and in-home, Good outdoor, Good outdoor and variable in-home, Variable outdoor, Poor to none outdoor) (Potential purchasers are advised to seek their own advice as to the suitability of the services and mobile phone coverage, the above is for guidance only.) Available broadband: Ultrafast Broadband: FTTP / Fibre to the Premises / Full fibre / Gigabit fibre Superfast Broadband: FTTC / Fibre to the Cabinet / Superfast / SoGEA Standard Broadband: ADSL / Asymmetric Digital Subscriber Line / Copper broadband Networks in your area: Virgin media, Openreach (Information supplied by Ofcom) Flood Risk: High risk of surface water flooding / Very low risk river and sea flooding (Information supplied by gov.uk and purchasers are advised to seek their own legal advice) Tenure: Freehold / Leasehold / Share Of Freehold Local Council: Southwark / Tax Band: C EPC Rating: C Floor plan: Whilst every attempt has been made to ensure accuracy, all measurements are approximate and not to scale. The floor plan is for illustrative purposes only.

Spurling Road, London, SE22 on Map