For Sale2 Bedroom Flat in Surbiton, London, KT6£650,000

Surbiton, London, KT6

2 Bedroom Flat for sale
£650,000
Property Type
Flat
Bedrooms
× 2
Bathrooms
× 2
Receptions
× 1
Tenure
Leasehold
Price
£650,000

Resources

Description

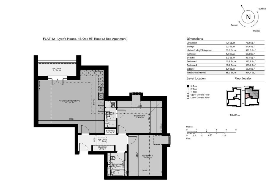
Apartment 12 Lyons House is a gorgeous, two bedroom apartment, situated on the third floor, which is ready to move in now and chain free. The home is ideal for modern living, with an open plan kitchen/living room, principle bedroom with en suite shower room, a further double bedroom and three piece family bathroom. Additional benefits include its own private outdoor space and under floor heating. Newlands House provides a peaceful residential setting, with open space provided by The Wood, immediately next to the development. Surbiton station is situated 5 minutes away serving London Waterloo in under 20 minutes. The A3 is close by giving easy access to Central London, the M25, Heathrow and Gatwick airports. Tenure: Leasehold Service Charge: £3,234 Annual Ground Rent: £0 Council Tax Band: Not yet set Information contained within this listing is for guidance only and should be checked and confirmed (prior to proceeding).

Surbiton, London, KT6 on Map