For Sale2 Bedroom Flat in London, London, N2£1,250,000

London, London, N2

2 Bedroom Flat for sale
£1,250,000
Property Type
Flat
Bedrooms
× 2
Bathrooms
× 2
Receptions
× 1
Tenure
Share of freehold
Price
£1,250,000

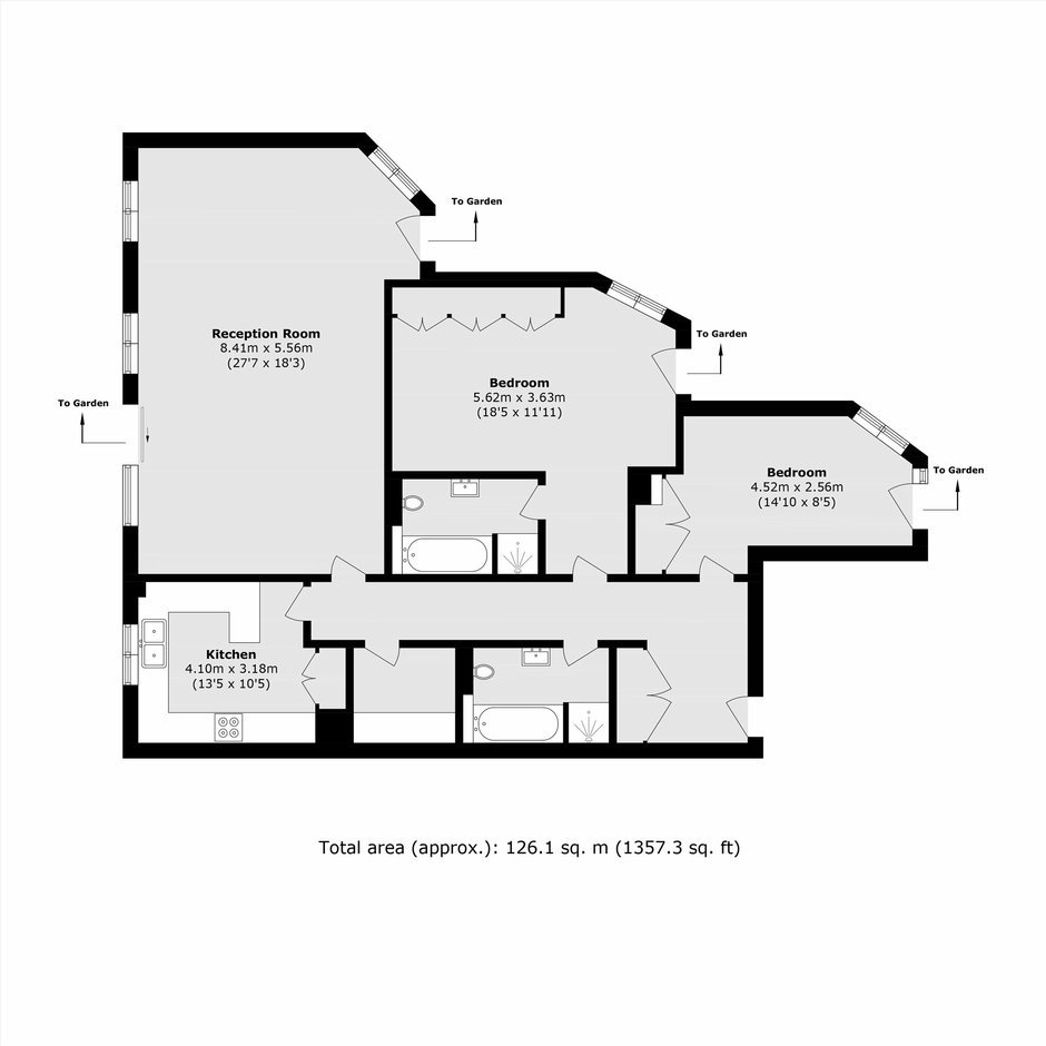
Description

Set back from the road behind a deep gated driveway, a large ground floor apartment in this small and exclusive block which has generous parking and delightful communal gardens. Located on the boarders of Hampstead Garden Suburb, there is easy access to East Finchley tube, shopping facilities, Highgate, Kenwood and schools along with places of worship Tenure: Share Of Freehold Lease Years Remaining: 111 Service Charge: £5,000 (Yearly) Council Tax Band: G Information contained within this listing is for guidance only and should be checked and confirmed (prior to proceeding).

London, London, N2 on Map