For Sale4 Bedroom Detached House in Manor Road, Adlingfleet, DN14 8HY£485,000

Manor Road, Adlingfleet, DN14 8HY

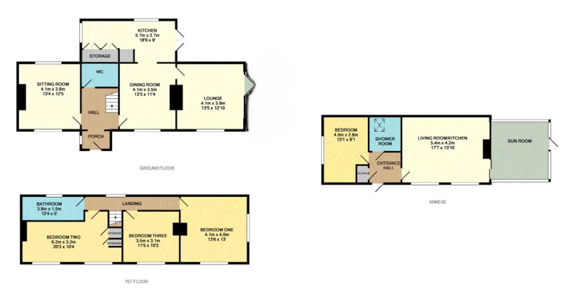
4 Bedroom Detached House for sale
£485,000
Property Type
Detached House
Bedrooms
× 4
Bathrooms
× 2
Receptions
× 3
Tenure
Freehold
Price
£485,000

Key Features

  • Detached House
  • Spacious Family Home
  • Large Private Gardens
  • Stunning Rural Location
  • Original Period Features
  • Ample Parking
  • Extensively Improved And Modernised
  • Log Burning Stoves
  • Oil Central Heating And Double Glazed Windows
  • Annex And Garden Office

Resources

Description

A DETACHED COUNTRY HOUSE including a DETACHED ONE BEDROOM ANNEX and CONTEMPORARY GARDEN/OFFICE ROOM in the PICTURESQUE and SERENE rural village of Adlingfleet. A rare opportunity to purchase this beautiful detached period property set within a quiet rural village location surrounded by beautiful sprawling countryside, yet within easy reach of surrounding commuter areas. Extensively improved and tastefully updated by the current owners with no expense spared, this immaculately presented spacious country house seamlessly blends a wealth of period features, with contemporary stylish living and is sure to appeal to a wide variety of purchasers. Including a separate, detached annex within the grounds, ideal for extended family living, but also with the potential to generate a second income stream as a business/holiday let (subject to necessary permissions). Additionally featuring a purpose built, modern office/garden building with power, lighting and heating this property would be perfect for those wishing to work from home. The main detached 3/4 bed family home offers a very flexible layout, original period features combined with everything required for contemporary family/professional living, in a quiet and picturesque setting within large private gardens and ample parking. Summary of Local Area Nestled in the serene and picturesque village of Adlingfleet, this property strikes a perfect balance between rural charm and convenience. The East Riding of Yorkshire offers access to beautiful countryside walks, local amenities, and a strong sense of community. With Goole nearby, residents enjoy excellent transport links, including both road and rail connections to larger towns and cities. Additionally, there are a variety of shopping, dining, and leisure options available. This property is ideal for those seeking a peaceful lifestyle combined with modern comforts.

Manor Road, Adlingfleet, DN14 8HY on Map