For Sale4 Bedroom Terraced House in Upperton Road, Leicester, LE3 0HF£290,000

Upperton Road, Leicester, LE3 0HF

4 Bedroom Terraced House for sale
£290,000
Property Type
Terraced House
Bedrooms
× 4
Bathrooms
× 1
Receptions
× 2
Tenure
Freehold
Price
£290,000
Stage
Under Offer

Key Features

  • Spacious Four Bedroom Terraced Property
  • Modern Kitchen
  • Ideal for families or first time buyers
  • Four Double Bedrooms
  • Pallisaded Villa
  • Period Features Throughout
  • Two Reception Rooms
  • Modern Kitchen With Dining Room
  • Entrance Hall
  • Spread Over Three Floors

Resources

Description

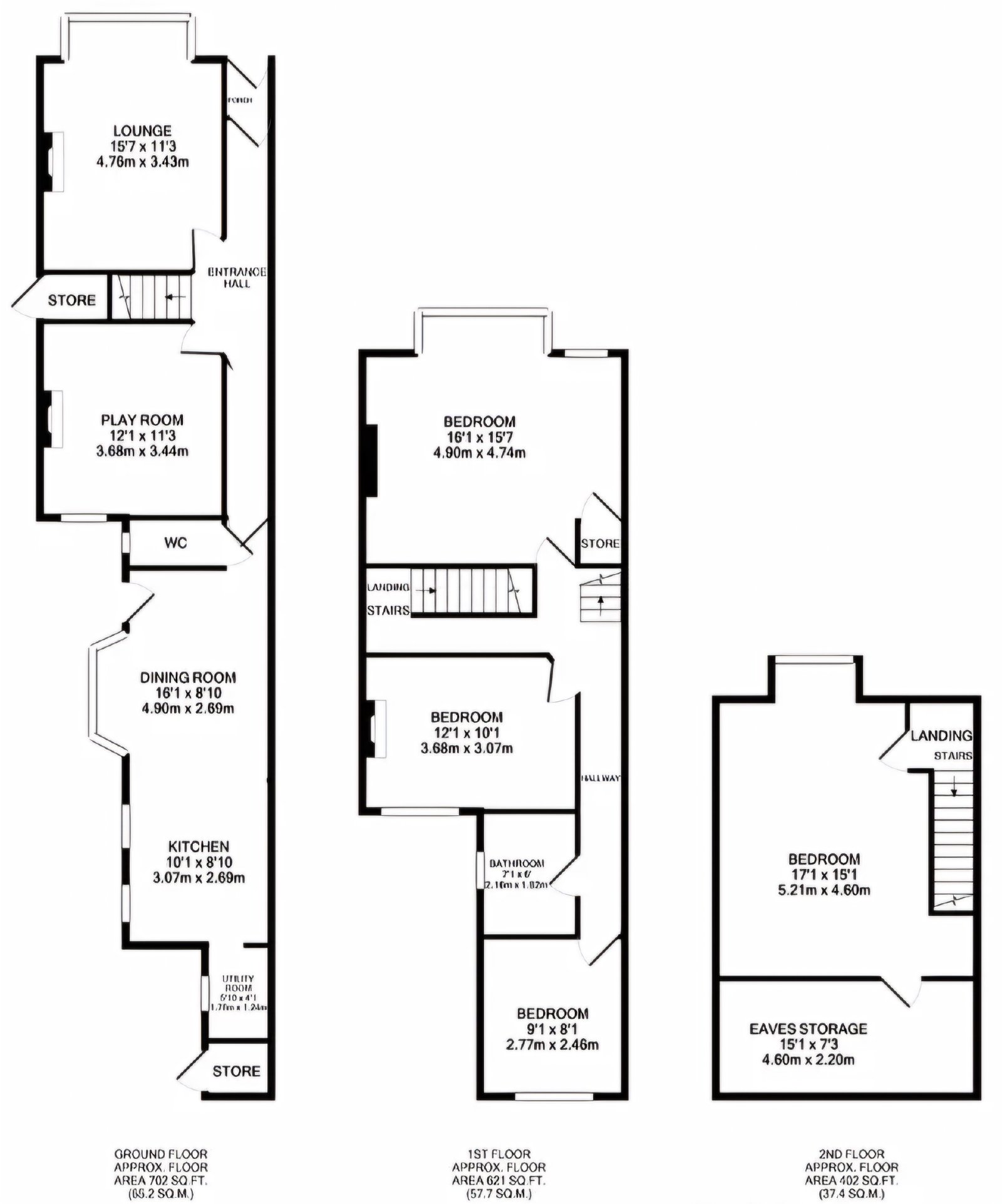
Elegant Pallisaded Villa with Period Charm – 147 Upperton Road, Leicester, LE3 0HF Set in a prime location directly overlooking the tranquil Westcoates Gardens Park, this beautifully presented pallisaded villa offers a perfect blend of period features and contemporary living. Spread across three spacious floors, this four double bedroom home boasts timeless character alongside thoughtful modern upgrades. Step through the inviting entrance hall into two bright and stylish reception rooms, ideal for relaxing or entertaining. The heart of the home is the modern kitchen with open dining space, perfect for family gatherings and social occasions. A convenient downstairs WC adds practicality to the elegant layout. Upstairs, you’ll find three well-proportioned bedrooms and a family bathroom on the first floor, with a versatile fourth bedroom or office space and handy eaves storage on the second. All bedrooms feature integrated wardrobes and tasteful, contemporary décor throughout. To the rear, enjoy an attractive yard, perfect for low-maintenance outdoor living. Additional highlights include a brand-new boiler (2025), close proximity to local amenities, top-rated schools, universities, and excellent transport links—making this a superb family home or an astute rental investment. Arrange your viewing today – this character-filled gem won't last long!

Upperton Road, Leicester, LE3 0HF on Map