For Sale3 Bedroom Semi-Detached House in Hurstway, Fulwood ,Preston, PR2 9TT£210,000

Hurstway, Fulwood, Preston, PR2 9TT

3 Bedroom Semi-Detached House for sale
£210,000
Property Type
Semi-Detached House
Bedrooms
× 3
Bathrooms
× 1
Receptions
× 2
Tenure
Freehold
Price
£210,000

Key Features

  • Three Bedroom Semi Detached House
  • No Chain

Resources

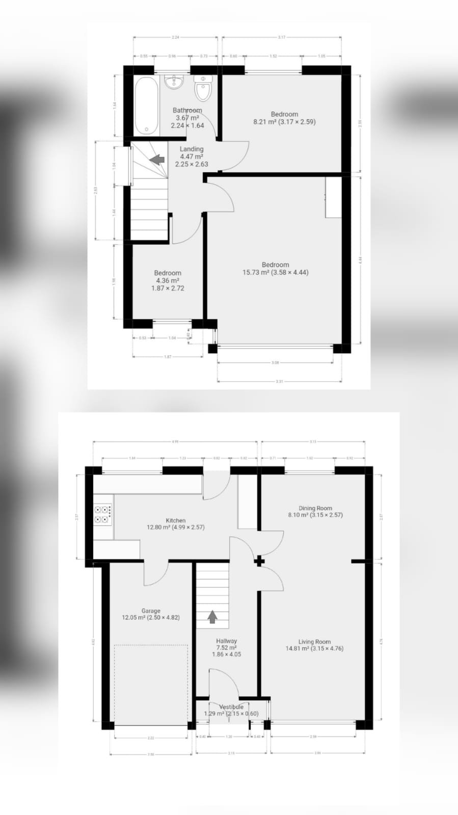
Description

*** OFFERED WITH THE CONVENIENCE OF NO ONWARD CHAIN*** Set within the very popular area of Fulwood, Preston is this well presented Three Bed Extended Semi Detached Family house which could be ideal for a variety of buyers including First Time Buyers! Situated within a close proximity to all local amenities, shops, both local primary and secondary schools, less than a mile to Royal Preston Hospital, as well as fantastic transport links for all commuters including quick access to the M55/M6 Motorway links.   The property is well presented throughout and offers potential in abundance and gives it's new owners a chance to  really put their mark on the property, certain features include, Off-Street Parking via the Driveway, Integral Garage with manual up and over door, Extended Kitchen, Open Plan Lounge/Diner and a South West Facing Rear Garden to name a few!   Internal accommodation comprises of Entrance Vestibule, Inner Hallway with Understairs Storage, Open Plan Lounge/Diner, Extended Kitchen and Integral Garage with Electrics and Lighting. To the First Floor you have Three Bedrooms and a Three Piece Family Bathroom Suite with Panelled Bath and Electric Shower over the bath.   Externally to the front you have a small laid to lawn garden with various shrubs and plants, Off-Street Parking via the Driveway and access to the Integral Garage via the up and over door. The rear garden is the perfect South West facing garden as is mostly laid to lawn with various shrubs planted and a patio seating area, perfect for summer time evenings.   For any investors looking to purchase for rent, subject to a full lettings valuation we believe that the property could achieve a rental value of up to £1,000 Per Calander Month.   This property is available to view by appointment only and is not to be missed out on, so call today for your viewing appointment.   EPC Grade - D Council Tax Band - B Local Authority - Preston Council

Hurstway, Fulwood ,Preston, PR2 9TT on Map