For Sale4 Bedroom End of terrace House in Enderbys Wharf, St Ives, PE27 5GT£625,000

Enderbys Wharf, St Ives, PE27 5GT

4 Bedroom End of terrace House for sale
£625,000
Property Type
End of terrace House
Bedrooms
× 4
Bathrooms
× 1
Receptions
× 1
Tenure
Freehold
Price
£625,000

Key Features

  • Exclusive end of terrace home
  • Four bedrooms, including master suite en suite
  • Private mooring with direct water access
  • Internal garage with double driveway
  • 2 minute walk to town centre shops and amenities
  • Commuter links A14 Cambridge15 mins, London 1 hour

Resources

Description

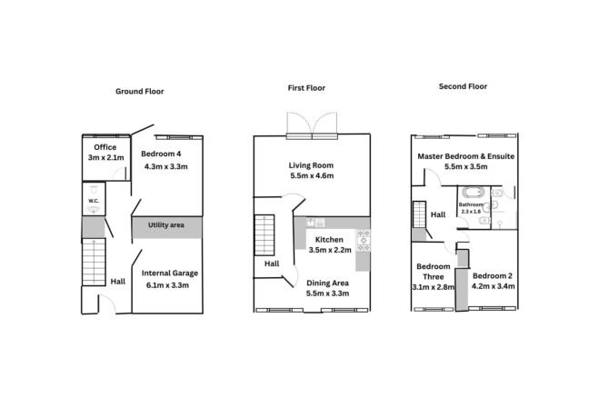
Exclusive 4-Bedroom End-of-Terrace Home with Private Mooring & Exceptional Outdoor Space Rarely available and nestled in a sought-after conservation area, this fully renovated, turnkey 4-bedroom end-of-terrace property offers an exceptional lifestyle opportunity in one of the area's most desirable private roads. Spread across three spacious floors, the home boasts a large lounge perfect for relaxing or entertaining, a separate kitchen and dining area, and a dedicated office—ideal for remote work. The top floor features three well-proportioned bedrooms, including a luxurious master suite with en-suite bathroom, while the fourth bedroom is located on the ground floor. Additional highlights include an internal garage with a utility area, a double driveway for ample parking, and versatile outdoor space including a small rear decked garden and a large, enclosed side garden—perfect for family life or summer entertaining. What truly sets this home apart is its private mooring, offering direct water access, and its enviable location—just a 2-minute walk to the town centre with shops, cafes, and all amenities. Enjoy access to beautifully maintained communal gardens and scenic local walks, with the tranquillity of a conservation area surrounding you. Commuters will appreciate the direct access to the A14, with Cambridge reachable in just 15 minutes and London in around an hour. Properties in this exclusive enclave rarely come to market—early viewing is highly recommended

Enderbys Wharf, St Ives, PE27 5GT on Map