For Sale4 Bedroom House in Coleshill Lane, Winchmore Hill, Amersham, Buckinghamshire, HP7£995,000

Coleshill Lane, Winchmore Hill, Amersham, Buckinghamshire, HP7

4 Bedroom House for sale
£995,000
Property Type
House
Bedrooms
× 4
Bathrooms
× 2
Receptions
× 3
Tenure
Freehold
Price
£995,000

Key Features

  • Plot size circa 0.21 acres with existing three bedroom home
  • 105ft south facing garden
  • Planning permission granted for 4 bedroom home
  • Popular village location
  • Existing house epc rating e
  • Existing house council tax band f

Description

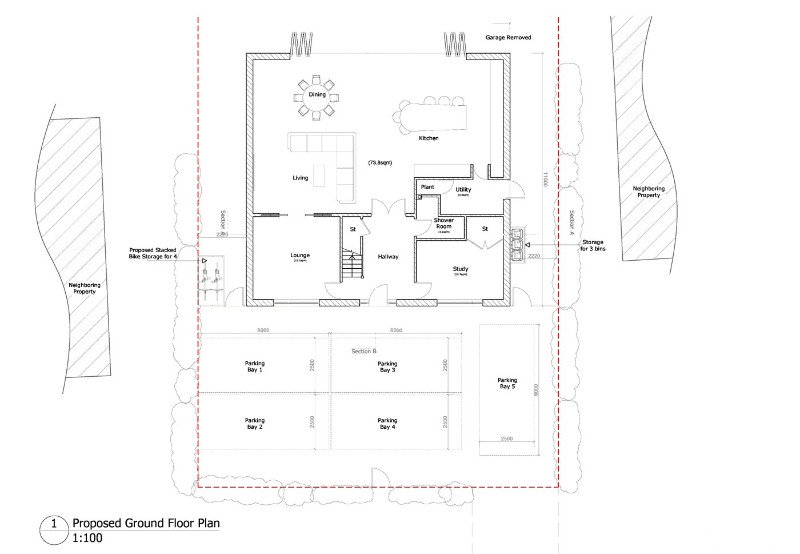
A wonderful opportunity in a picturesque, central location in the sought-after village of Winchmore Hill. Planning permission has been granted to build a new-build four-bedroom home on this beautiful level plot with existing house on Coleshill Lane offering incoming purchasers the option to build their dream home either immediately or at a later stage. This new-build house would provide accommodation of approximately 2350sq ft comprising a spacious open plan kitchen/family room, lounge, study, utility room, four bedrooms and three bath/shower rooms. Full planning details can be found on the Buckinghamshire Council website, Chiltern and South Bucks division, planning reference PL/24/3808/FA The existing double fronted house includes approximately 1,000 sq ft of accommodation with two reception rooms, kitchen, a conservatory style rear reception, shower room, two double bedrooms and additional reception room which would make a good study or third bedroom. The property is set on a plot of circa 0.2 acre. To the front, the garden is mainly laid to lawn with a central pathway and driveway leading to both the house and detached garage and to the rear, a large garden with mature hedging. The property is located in a picturesque spot, just moments from the heart of Winchmore Hill village, close to both countryside walks and its popular local pub. For a more comprehensive range of supermarkets, high street stores, leisure and practical amenities, along with direct rail access into London, both Beaconsfield and Amersham are easily accessible at approximately 3-4 miles away. Buckinghamshire retains the selective grammar school system with schools in Beaconsfield and nearby High Wycombe both highly regarded.

Coleshill Lane, Winchmore Hill, Amersham, Buckinghamshire, HP7 on Map