For Sale3 Bedroom Semi-Detached House in Upper Breckland Road, Norwich, NR5 0RL£300,000

Upper Breckland Road, Norwich, NR5 0RL

3 Bedroom Semi-Detached House for sale
£300,000
Property Type
Semi-Detached House
Bedrooms
× 3
Bathrooms
× 1
Receptions
× 1
Tenure
Freehold
Price
£300,000

Key Features

  • Excellent 3 Bedroom Semi Detached House
  • Sought After Location Close to Schools
  • Renovated and Modernised
  • Open Plan Lounge/Diner
  • Garage and Off Road Parking
  • Generous Sized Private Garden
  • Viewing Highly Recommended

Resources

Description

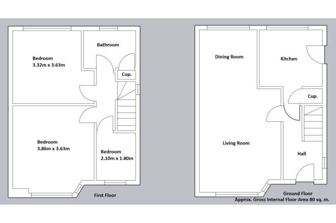
Three-bedroom semi-detached 1950s built family home with spacious garden in a sought after area of Costessey. Located within walking distance of highly rated primary and secondary schools, this move-in ready home ticks all the boxes for families seeking space, style and convenience. Costessey located to the west of Norwich has a selection of amenities including good schooling, selection of shops, pubs and restaurants, with good access to UEA, Hospital, A47 and public transport links. The ground floor features a bright welcoming entrance hall opening up into a bright airy kitchen. The open-plan lounge/diner benefits from premium hardwood flooring running throughout, with a wood burning stove adding warmth and elegance. Upstairs, the first floor provides three well-proportioned bedrooms and a modern family bathroom off the landing. Outside, the property boasts a large, lawned rear garden, perfect for children and entertaining, a private front driveway offering ample off-road parking, and a garage for additional storage. Accommodation Comprises - Front door to: Entrance Hall - Doors to lounge, kitchen and stairs to first floor. Lounge/Dining Room - Bay fronted double glazed window, radiator, wood-burning fire and hardwood flooring. Kitchen - Fitted wall and base units with worktops over, sink, with space for oven, fridge/freezer and washing machine, double glazed window, radiator, gas boiler. Bedroom One - 3.86 x 3.63 - Bay fronted double glazed window, radiator and built in wardrobes. Bedroom Two – 3.63 x 3.32 - Double glazed window and radiator. Bedroom Three - 2.10 x 1.88 - Double glazed window and radiator. Bathroom - Panelled bath with power shower, WC, hand wash basin, radiator and frosted double glazed window. Outside Front – Partial stoned garden and large driveway providing amble off road parking leading to a single garage. Outside Rear - Large lawned garden enclosed by timber fencing with patio, shed and pagoda.

Upper Breckland Road, Norwich, NR5 0RL on Map