For Sale3 Bedroom House in Kenilworth Drive, Borehamwood, Hertfordshire, WD6£450,000

Kenilworth Drive, Borehamwood, Hertfordshire, WD6

3 Bedroom House for sale
£450,000
Property Type
House
Bedrooms
× 3
Bathrooms
× 1
Receptions
× 2
Tenure
Freehold
Price
£450,000
Stage
Under Offer

Key Features

  • Three bedrooms
  • Two receptions
  • Chain free
  • South borehamwood
  • 1009 square feet
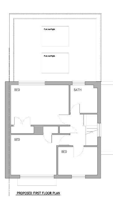
  • Permission granted for a five metre rear extension
  • Rear garden backing kenilworth park
  • Party wall awards in place

Description

A charming terraced three bedroom house with planning permission to extend at the rear. This opportunity is set on a popular residential road within close proximity of well-regarded schools, bus routes and parkland. The property is in need of modernisation which offers a purchaser the opportunity to create and personalise their dream home. The property benefits from planning approval for a 5M rear extension with party wall agreements in place with the two neighbouring properties. Planning references below: Hertsmere Council: 20/0074/PD42 - Approved Mon 17 Feb 2020 - The planning has been implemented The accommodation currently includes an entrance hallway, living room, dining room, kitchen, three bedrooms and a first floor bathroom. There is generous scope for enlargement by way of the planning permissions that have already been granted. Borehamwood enjoys a reputation as a highly desirable residential area, with a bustling town centre containing restaurants, shops and leisure spaces. Transport links are excellent, with the A1, M1 and M25 being within a 5 minutes’ drive, and Heathrow, Stanstead and Luton Airports within a 45 minute drive. A excellent refurbishment opportunity to create a bespoke family home.

Kenilworth Drive, Borehamwood, Hertfordshire, WD6 on Map