For Sale4 Bedroom Detached House in Marsh Drive, Kibworth Harcourt, LE8£820,000

Marsh Drive, Kibworth Harcourt, LE8

4 Bedroom Detached House for sale
Guide Price: £820,000
Property Type
Detached House
Bedrooms
× 4
Bathrooms
× 2
Receptions
× 1
Tenure
Freehold
Guide Price
£820,000

Key Features

  • Striking Eco Home in sought after Kibworth Harcourt
  • Discreetly positioned in the heart of Kibworth Harcourt
  • Spacious open plan lounge and dining room with sliding doors
  • Contemporary breakfast kitchen with island, pantry & integrated appliances
  • Flexible first floor reception room/optional fourth bedroom
  • Three double bedrooms including principal suite with ensuite
  • Two stylish bath/shower rooms
  • Professionally landscaped rear garden with pond and seating areas
  • Driveway parking for several vehicles plus garage
  • Superb eco credentials: solar PV, air source heating, rainwater harvesting, and living green roof

Resources

Description

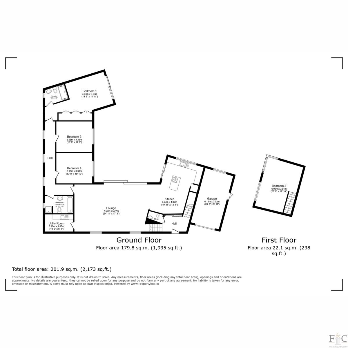
Tucked away in a peaceful setting within the ever-popular village of Kibworth Harcourt, this striking eco home combines contemporary design with exceptional efficiency. Large expanses of glazing fill the interiors with natural light, framing attractive garden views and creating a seamless connection between inside and outside. Thoughtfully designed with sustainability at its heart, the property offers lower running costs and reduced environmental impact through features such as smart underfloor heating powered by an air source heat pump, mechanical ventilation with heat recovery, optional rainwater harvesting, and a central vacuum system.A 4.5kW solar PV system and living green roof further enhance efficiency, insulation and biodiversity. The property is entered via a welcoming entrance hall, which includes a cloakroom/WC and a storage cupboard. Stairs rise to a versatile first-floor reception room, originally designed as a fourth bedroom. This adaptable space could serve as a formal reception, occasional guest bedroom, or home office. A corner window fills the room with light and frames striking views over the professionally landscaped gardens, making it a bright and visually appealing feature. At the heart of the home is a striking open plan lounge and dining area. The lounge is centred around a contemporary electric fire, while a large sliding glass door positioned centrally in the room provides direct access to the garden. The layout encourages relaxed family living and entertaining. The adjacent breakfast kitchen is a sociable space, featuring a central island with breakfast bar, Quartz worktops, recently installed contrasting glass splashbacks, a Quooker boiling tap, a walk-in pantry, and integrated appliances including induction hob, extractor, double oven, wine cooler, and dishwasher. A utility room is accessed from the living area. The bedroom wing is arranged along an inner hallway. The principal suite features sliding patio doors opening onto the terrace, offering excellent views of the landscaped garden, along with fitted wardrobes and a private ensuite. The remaining two bedrooms are both doubles, each with fitted wardrobes, and enjoy views over the garden. They are served by a well-appointed family bathroom with both a bath and separate shower. A private driveway provides ample parking and access to the garage, which features an electric up-and-over door and a convenient dog shower. The rear garden is exceptionally private, enclosed by mature boundaries, and has been thoughtfully designed and professionally landscaped as a seamless extension of the indoor living space. Accessible from the principal suite, kitchen, and open-plan living area, it offers a peaceful setting for relaxing or entertaining, featuring a paved terrace, an attractive raised pond, and a low-maintenance artificial lawn. Location Kibworth is a highly sought-after South Leicestershire village, conveniently positioned between Leicester and Market Harborough. The village offers a wide range of everyday amenities including shops, a health centre, restaurants, and pubs, as well as highly regarded state and private schools. Sporting facilities include an 18-hole golf course, cricket ground, tennis courts, and a bowling green. Commuters benefit from excellent rail connections, with both Leicester and Market Harborough stations providing direct services to London St Pancras in under one hour. Families also have easy access to reputable schools, including Leicester Grammar School, Stoneygate School, and well-regarded local state schools. Additional Information Tenure: Freehold Services: Mains electricity, water and drainage. Heating: Air source heating Local Authority: Harborough district council. EPC Rating: B Council Tax Band: F Superfast Broadband 75 Mbps Disclaimer: Important Information: Property Particulars: Although we endeavor to ensure the accuracy of property details we have not tested any services, equipment or fixtures and fittings. We give no guarantees that they are connected, in working order or fit for purpose. Floor Plans: Please note a floor plan is intended to show the relationship between rooms and does not reflect exact dimensions. Floor plans are produced for guidance only and are not to scale.

Marsh Drive, Kibworth Harcourt, LE8 on Map