For Sale2 Bedroom Terraced House in Kings Road, Newbury Rg14£275,000

Kings Road, Newbury Rg14

2 Bedroom Terraced House for sale
Guide Price: £275,000
Property Type
Terraced House
Bedrooms
× 2
Bathrooms
× 1
Tenure
Freehold
Guide Price
£275,000

Key Features

  • Property attributes: Terraced
  • Additional attributes: Garden
  • Locality: Town/City
  • Tenure: Freehold
  • Energy efficiency rating: D
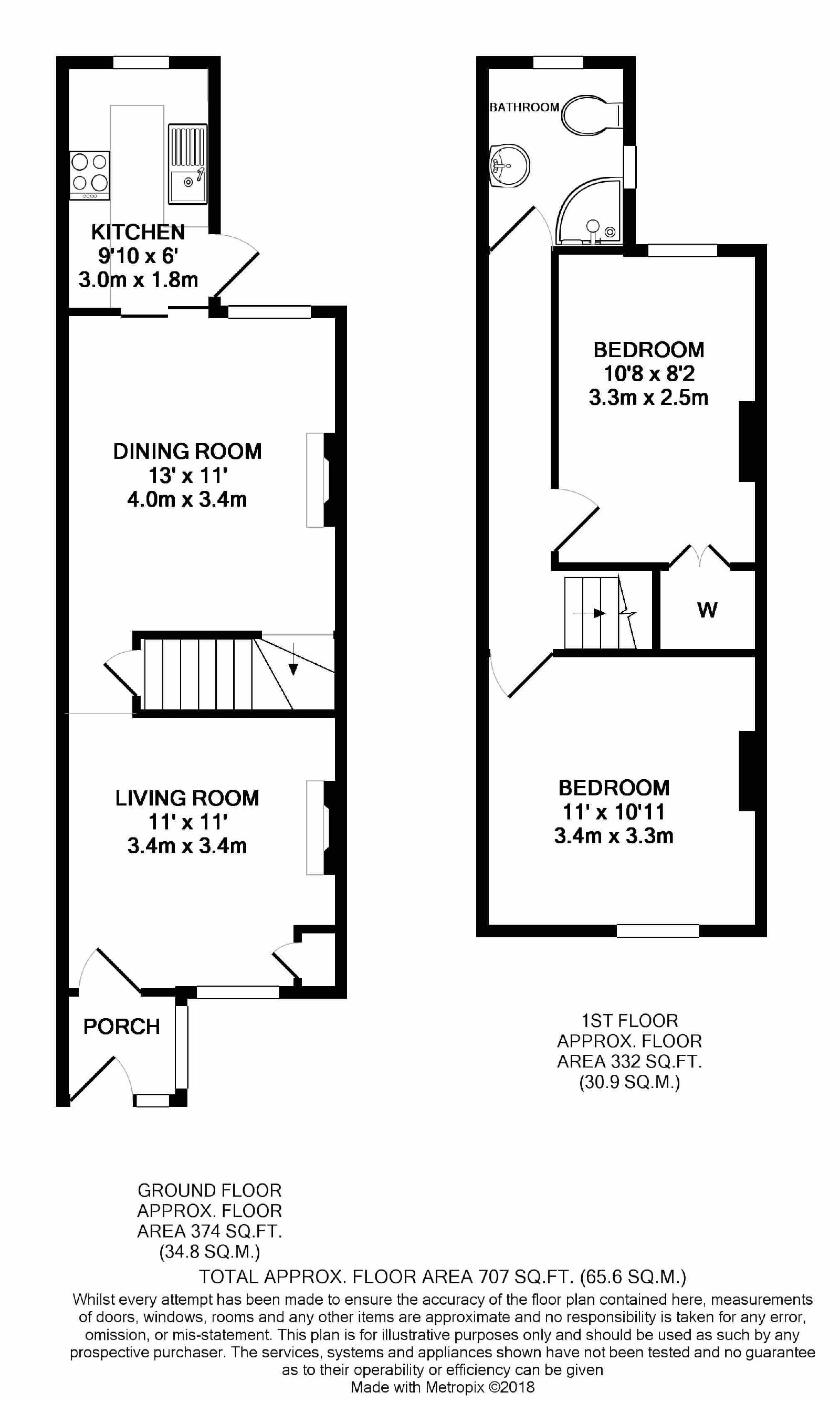
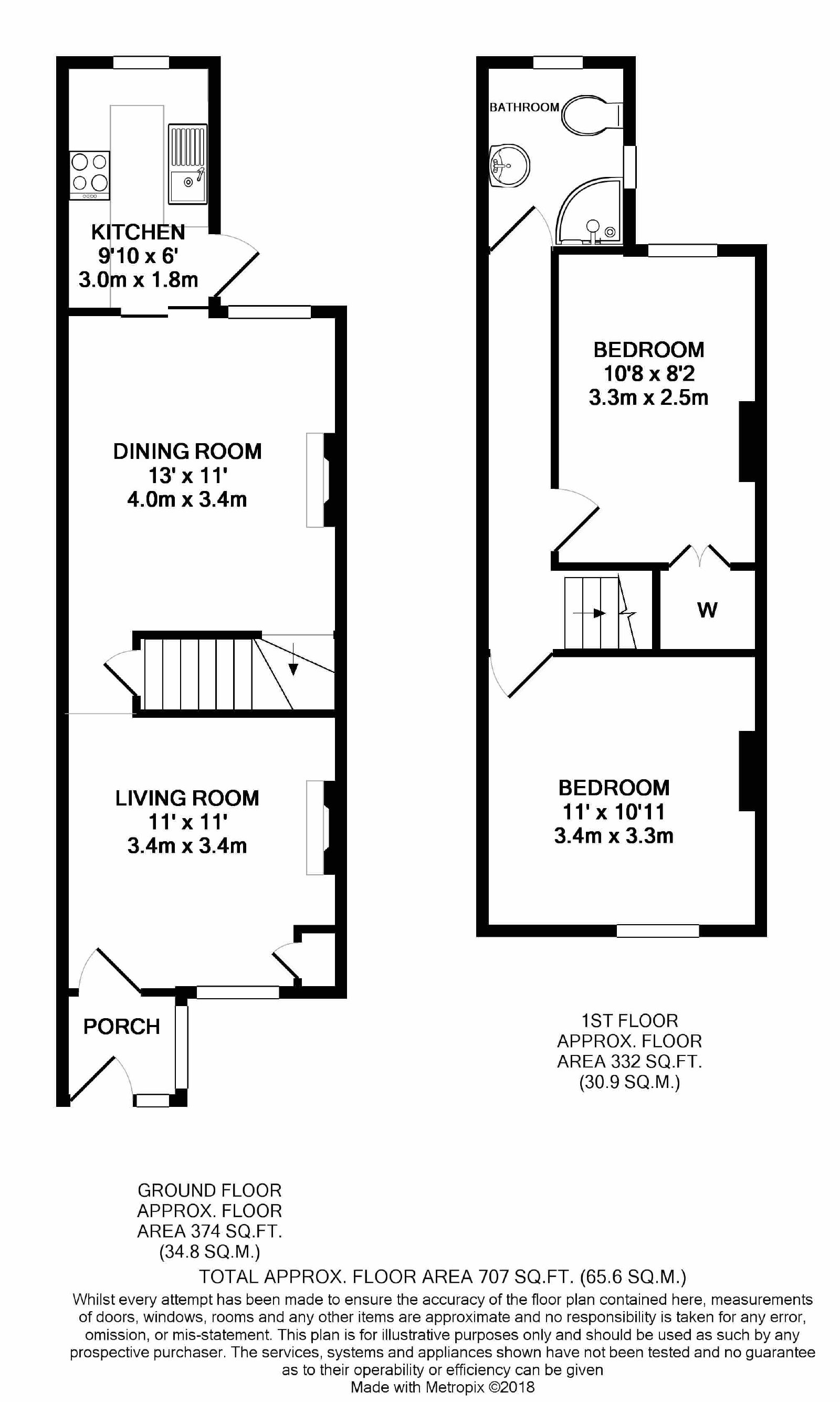
  • Total sq ft: 707
  • Carter Jonas reference: NEW220380

Resources

Description

An attractive 2 bedroom terraced house with an excellent central cul de sac location within Newbury town. 2 reception rooms, a modern well-equipped fitted kitchen and generous private gardens. Parking permit available. For sale chain free. Description: This attractive terraced house is extremely well situated within easy access to Newbury and the town’s facilities. The property benefits from 2 reception rooms including a comfortable living room to the front which leads to a dining room, beyond here there is a well-equipped fitted kitchen with access to the gardens. Upstairs the feeling of light and space continues with 2 comfortable bedrooms and a bathroom. Outside: The property benefits from a generous rear garden with a patio leading from the house to a long stretch of lawn. Cul de sac available with parking permit. Tenure: Freehold Services: All mains services connected, gas fired central heating Local Authority: West Berkshire Council Council Tax: Band C

Kings Road, Newbury Rg14 on Map