For Sale3 Bedroom Detached House in Ranworth£550,000

Ranworth

3 Bedroom Detached House for sale
Guide Price: £550,000
Property Type
Detached House
Bedrooms
× 3
Bathrooms
× 2
Guide Price
£550,000

Key Features

  • A Detached Cottage with Stunning Views over Malthouse Broad in the Village of Ranworth
  • Two/Three Bedrooms, Ground Floor Shower Room and First Floor Bathroom
  • Kitchen and One/Two Reception Rooms
  • The Property offers Versatility with a Ground Floor Bedroom if Required
  • Landscaped Gardens provide an Enclosed Rear Garden with Patio Areas, Garden Sheds and Wood Store
  • Gated Driveway provides Plenty of Parking
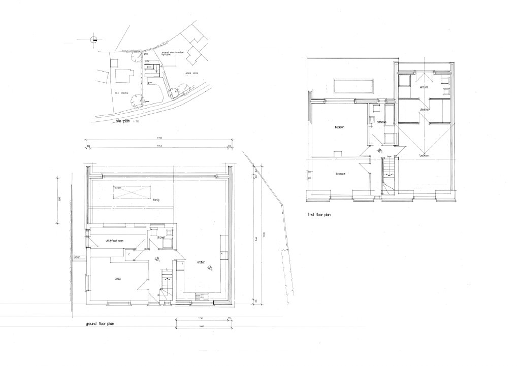
  • The Accommodation extends to 939sq.ft
  • Full Planning for a Wrap Around Extension, see Plans in the Photos
  • Energy Rating: D

Resources

Description

GUIDE PRICE £550,000 - £600,000 -No onward chain. With stunning views over Malthouse Broad to the front and the historic village church to the rear, this cottage enjoys a truly superb setting. Watch the wildlife to your heart’s content, head out on the water, visit the nature reserve, have dinner in the local pub, get to know the neighbours at one of the many village events – it may be quiet here but it’s never dull! You’re close to Norwich, the A47 and the Broadland Northway, so travel is a breeze – and the recently renovated property comes with full planning for a fabulous wraparound extension, so there’s further potential too.

Ranworth on Map