For Sale4 Bedroom Detached House in Malyons Road, Hextable, Kent, BR8£950,000

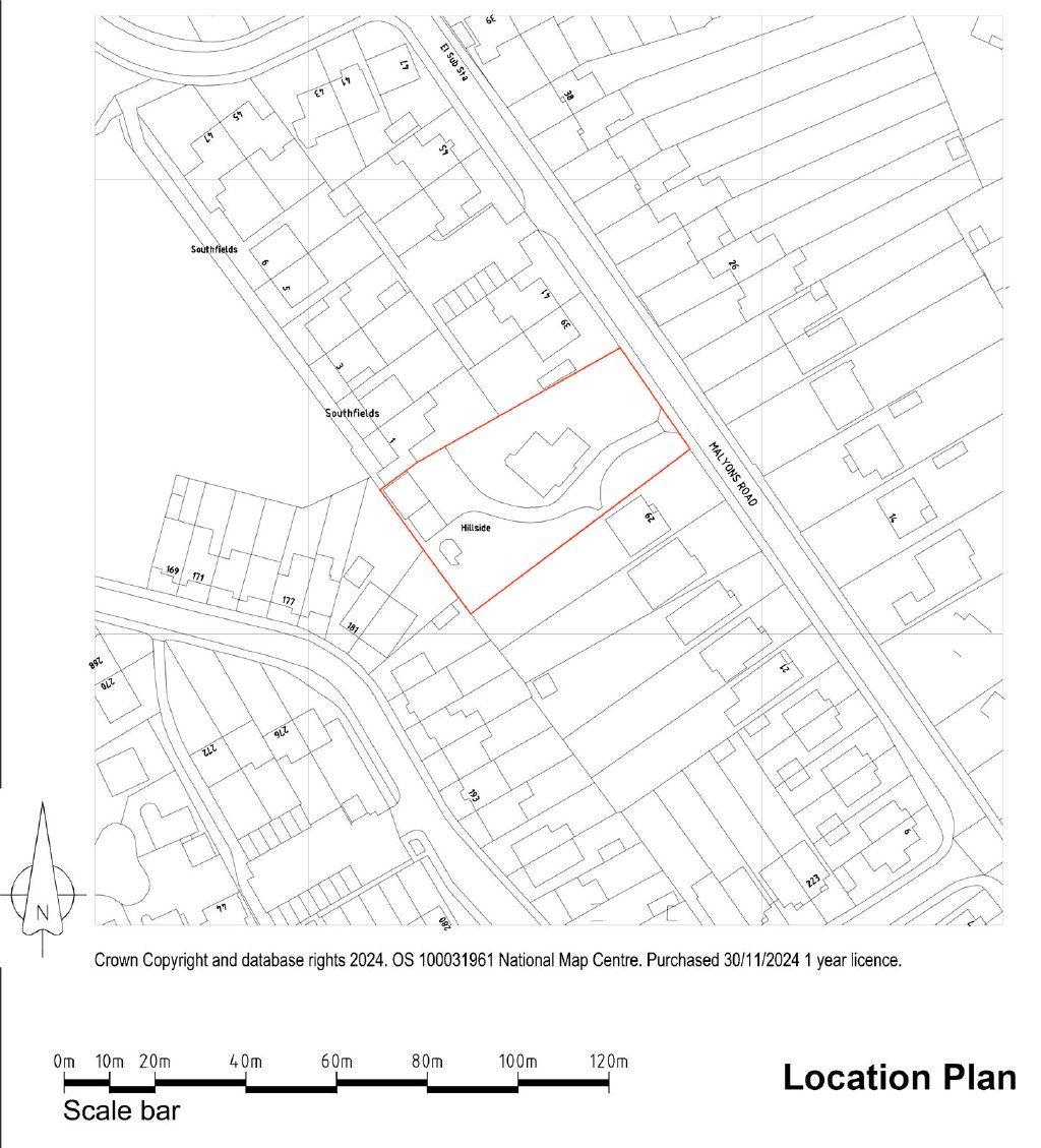
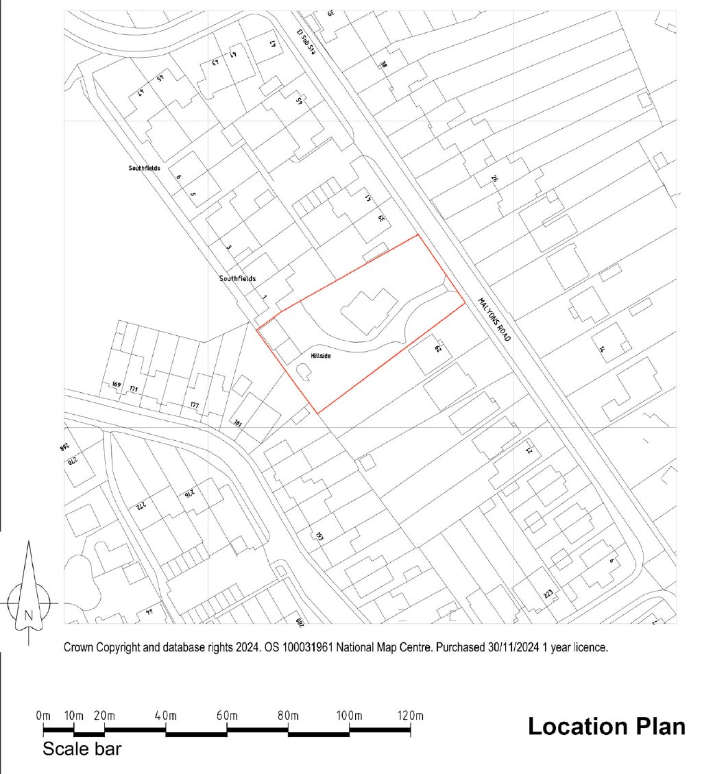
Malyons Road, Hextable, Kent, BR8

4 Bedroom Detached House for sale
Guide Price: £950,000
Property Type
Detached House
Bedrooms
× 4
Bathrooms
× 1
Receptions
× 5
Guide Price
£950,000

Key Features

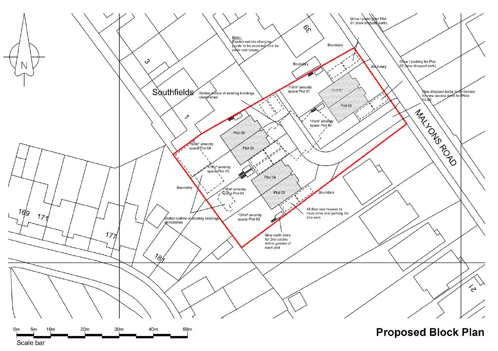
  • Redevelopment Opportunity
  • Planning Permission Granted for the demolition of existing house and construction of 6 new 3 bedroom self build/custom build dwellings
  • Edwardian Detached Art Deco Design House
  • Four / Five Bedrooms
  • Five Reception Rooms
  • Needing Modernisation With Bags of Potential
  • Kitchen Breakfast Room & Separate Utility
  • 0.47 Acre Wrap Around Garden Plot & Drive
  • Detached Double Garage & Double Garage/Workshop
  • Vacant Possession

Resources

Description

For sale by Modern Method of Auction; Starting Bid Price £950,000 plus Reservation Fee. • For Sale by Auction – T & C’s apply • Subject to an undisclosed Reserve Price • Reservation Fee applicable • The Modern Method of Auction Development opportunity which is coming to the market for the first time in fifty years, Hillside is an attractive Edwardian detached home with elegant Art Deco features, set within a wrap-around 0.47 acre garden plot and offering a wealth of potential with planning permission granted for the demolition of existing house and construction of 6 new 3 bedroom self-build/custom-build dwellings, or for those seeking a substantial family residence to sympathetically extend and modernise creating a forever home in this desirable Kentish village. Offered with vacant possession, this charming property is ready for either a developer or a family particularly one looking for multigenerational space, versatility and character. For those looking at the aspect as a family home a welcoming entrance porch opens to the hallway, setting the tone for the period detail throughout. The ground floor flows through four main reception rooms — a sitting room, dining room, family room and an impressive drawing room complete with fitted bar and distinctive round Crittall windows — all offering individual charm and flexibility. The kitchen breakfast room is served by a utility room and there is a ground-floor wet room. To the rear, the conservatory opens out to the garden and incorporates a jacuzzi area. Upstairs, the first floor offers four bedrooms, a study, a family bathroom, a separate shower room and even a private sauna. From the landing, a further room leads to the converted attic, providing an additional bedroom or hobbies space with adjoining loft storage, ensuring the home adapts effortlessly to changing family needs. Outside, the property is approached by a sweeping driveway providing ample parking and leading to extensive detached garaging — comprising of a double garage with adjoining double garage / workshop - ideal for car collectors or anyone seeking generous work or storage space. The mature gardens wrap around the property, featuring lawns, patio, shrubs and outbuildings, including a greenhouse and storage container, offering both privacy and scope for landscaping or extension subject to consents. With its striking Edwardian façade, spacious interior and significant outbuildings, Hillside represents a rare opportunity to acquire a one-of-a-kind home that can be restored and re-imagined to meet modern lifestyles - a property with history, presence and exceptional potential in a peaceful Kentish setting. For those looking to pursue the redevelopment of the plot planning permission is granted for the demolition of existing house and construction of 6 new 3 bedroom self-build/custom-build dwellings. Location    Hextable is a semi-rural village in north-west Kent between Swanley and Dartford, surrounded by Green Belt farmland yet within easy reach of London. The village retains its traditional community feel with a post office, bakery, chemist and grocery stores centred around its tree-lined green and lies just 16 miles from central London with excellent road access to the A2, A20, M20, M25 and Dartford Crossing. Nearby stations at Swanley, Dartford and Bexley provide direct rail services to London Bridge and London Victoria, while Ebbsfleet International offers high-speed links to St Pancras. Local schooling is well served with Hextable Primary, Wilmington Grammar Schools for Boys and Girls, and Wilmington Academy all within easy reach. Dartford Grammar School for Boys with Dartford Grammar School for Girls a short drive away. Directions    From Hextable Post Office, head north on Main Road/B258. At the roundabout, take the 1st exit onto College Road. Turn right onto Malyons Road. The property is on the left-hand side. Auctioneer's Comments    This property is for sale by the Modern Method of Auction. Should you view, offer or bid on the property, your information will be shared with the Auctioneer, iamsold. This method of auction requires both parties to complete the transaction within 56 days of the draft contract for sale being received by the buyer's solicitor. This additional time allows buyers to proceed with mortgage finance (subject to lending criteria, affordability and survey). The buyer is required to sign a reservation agreement and make payment of a non-refundable Reservation Fee. This being 4.5% of the purchase price including VAT, subject to a minimum of £6,600.00 including VAT. The Reservation Fee is paid in addition to purchase price and will be considered as part of the chargeable consideration for the property in the calculation for stamp duty liability. Further Auctioneer's Comments    Buyers will be required to go through an identification verification process with iamsold and provide proof of how the purchase would be funded. This property has a Buyer Information Pack which is a collection of documents in relation to the property. The documents may not tell you everything you need to know about the property, so you are required to complete your own due diligence before bidding. A sample copy of the Reservation Agreement and terms and conditions are also contained within this pack. The buyer will also make payment of £300.00 including VAT towards the preparation cost of the pack, where it has been provided by iamsold. The property is subject to an undisclosed Reserve Price with both the Reserve Price and Starting Bid being subject to change. Referral Arrangements    The Partner Agent and Auctioneer may recommend the services of third parties to you. Whilst these services are recommended as it is believed they will be of benefit; you are under no obligation to use any of these services and you should always consider your options before services are accepted. Where services are accepted the Auctioneer or Partner Agent may receive payment for the recommendation and you will be informed of any referral arrangement and payment prior to any services being taken by you. Entrance Porch    Period wooden front door. Wiindow to side and front. Beamed ceiling. Brick flooring. Entrance Hall    Frosted, semi glazed, front door to front. Frosted windows to front. Papered ceiling. Carpet. Radiator. Stairs to first floor. Sitting Room 11'9" x 11'7" (3.58m x 3.53m). Double glazed window to front and featured curved window to front. Two bay windows to side. Papered and coved ceiling. Carpet. Radiator. Period fireplace with gas fire. Dining Room 17'5" x 12'2" (5.3m x 3.7m). Double glazed bay window to front. Beamed ceiling. Carpet. Dado rail. Two radiators. Serving hatch to kitchen. Drawing Room 18'11" x 16'5" (5.77m x 5m). Double glazed window to front. Double glazed window to side. Double glazed door to side. Two feature, round Crittall windows to rear. Beamed ceiling. Carpet. Two radiators. Fitted bar. Family Room 11'8" x 11'5" (3.56m x 3.48m). Double glazed patio door to side. Papered coved ceiling. Carpet. Radiator. Kitchen/Breakfast Room 14' x 11'9" (4.27m x 3.58m). Double glazed window to sides. Papered ceiling. Part tiled walls. Carpet. Wall and base units with worktop over. Integrated electric oven and electric grill. Gas hob. Integrated fridge. One and half bowel stainless steel sink and drainer. Radiator. Serving hatch to Dining Room. Utility Room 11'8" x 7'3" (3.56m x 2.2m). Double glazed window to rear. Feature round Crittall window to rear. Plain ceiling. Base units with worktops over. One and a half bowl stainless steel sink and drainer. Part tiled walls. Carpet. Space for washing machine. Boiler. Consumer unit. Conservatory & Jacuzzi Room 18'3" x 10'4" (5.56m x 3.15m). Double glazed patio door to side. Double glazed frosted windows to side and rear. Tiled flooring. Part tiled walls. Electric radiator. Jacuzzi. Wet Room 5'9" x 6' (1.75m x 1.83m). Double glazed frosted window to rear. Papered ceiling. Downlighters. Panels to walls. Vinyl flooring. Low level W.C. Shower. Wash hand basin in vanity unit. Heated towel rail. Cabinet. Extractor fan. Rear Hallway    Double glazed frosted door to rear and window above. First Floor Landing    Feature leaded light window to study. Papered ceiling. Wrought iron staircase. Carpet. Airing cupboard and ceiling height cupboard. Dado rail. Lower Landing    Double glazed window to side. Papered ceiling. Carpet. Loft access. Bedroom/Games Room 20'5" x 16'6" (6.22m x 5.03m). Double glazed window to front and rear. Papered ceiling. Carpet. Two radiators. Dado rail. Storage cupboard. Sauna Room 5'2" x 3'3" (1.57m x 1m). Sauna. All wooden walls, ceiling and floor. Bench and sauna heater. Bedroom 13'8" x 12'1" (4.17m x 3.68m). Double glazed window to front. Papered ceiling. Dado rail. Carpet. Radiator. Fitted wardrobes and drawer unit. Bedroom 13'1" x 11'3" (4m x 3.43m). Double glazed window to front. Papered ceiling. Carpet. Radiator. Fitted wardrobes and shelving unit. Bedroom 10'4" x 9'2" (3.15m x 2.8m). Double glazed window to side. Papered ceiling. Carpet. Radiator. Period fitted cupboard. Study 8'4" x 6'3" (2.54m x 1.9m). Double glazed window to rear. Papered ceiling. Carpet. Period storage cupboard. Dado rail. Radiator. Feature leaded light window to landing. Family Bathroom 11'2" x 6'2" (3.4m x 1.88m). Double glazed frosted, arch window to rear. Papered ceiling. Carpet. Radiator. Panelled bath. Low level W.C. Wash hand basin. Fully tiled walls. Cabinet with shaver socket. Separate Shower 4'7" x 2'8" (1.4m x 0.81m). Double glazed frosted window to side. Papered ceiling. Carpet. Radiator. Fully tiled. Room to Loft Access 8'4" x 8'5" (2.54m x 2.57m). Double glazed window to side. Papered ceiling. Carpet. Radiator. Access stairs to loft. Attic Room 18'6" x 11' (5.64m x 3.35m). Double glazed window to front. Apex ceiling. Downlighters. Carpet. Eaves Storage. Door access to loft storage. Attic Store Room 20'3" x 19'6" (6.17m x 5.94m). Double Garage / Workshop 26'2" x 22'9" (7.98m x 6.93m). Metal roof. Double glazed door to front. Double glazed windows to front & rear. Double up and over door. Six roof lights. Power and light. Double Garage 20'1" x 1'7" (6.12m x 0.48m). Metal roof. Double glazed windows to side and rear. Two up and over doors. Two roof lights. Power and light. Outbuildings    Greenhouse. Container/shed. Wrap Around Gardens Overall Plot Size 0.47 Acres. Laid to lawn. Patio. Shrubs. Parking    Wrap around driveway with parking for several cars. Transport Information    Train Stations: Swanley 1.4 miles. Bexley 2.4 miles. Crayford 2.5 miles. Farningham 2.8 miles. Dartford 3 miles. Longfield 5.4 miles. Ebbsfleet Eurostar International Station 6.5 miles The distances calculated are as the crow flies. Local Schools    Primary Schools: Hextable Primary School 0.1 miles. Horizon Primary Academy 0.8 miles. St Pauls' Church of England Voluntary Controlled Primary School 0.8 miles. St Bartholomew's Catholic Primary School 0.9 miles. Joydens Wood Junior School 1 mile. Downsview Community Primary School 1.1 miles. Joydens Wood Infant School 1.1 miles. Wilmington Primary School 1.3 miles. Secondary Schools: The Annex School House 0.6 miles. Orchard Academy 1.2 miles. Wilmington Academy 1.3 miles. Wilmington Grammar School for Boys 1.3 miles. Parkwood Hall Co-Operative Academy 1.4 miles. Wilmington Grammar School for Girls 1.5 miles. Dartford Grammar School for Girls 2.4 miles. Dartford Grammar School for Boys 2.6 miles. Information sourced from Rightmove (findaschool). Please check with the local authority as to catchment areas and intake criteria Useful Information    We recognise that buying a property is a big commitment and therefore recommend that you visit the local authority websites for more helpful information about the property and local area before proceeding. Some information in these details is taken from third party sources. Should any of the information be critical in your decision making then please contact Fine & Country for verification. Tenure    The vendor confirms to us that the property is freehold. Should you proceed with the purchase of the property your solicitor must verify these details. Council Tax    We are informed this property is in band G. For confirmation please contact Sevenoaks Borough Council. Appliances/Services    The mention of any appliances and/or services within these particulars does not imply that they are in full efficient working order. Measurements    All measurements are approximate and therefore may be subject to a small margin of error. Opening Hours/Viewings    Monday to Friday 9.00 am – 6.30 pm Saturday 9.00 am – 5.30 pm Viewing via Fine & Country Sevenoaks office. Ref    FCSO/FW/JT/251020 - HAR250152

Malyons Road, Hextable, Kent, BR8 on Map