For Sale5 Bedroom Semi-Detached House in Newport, Isle of Wight, PO30£695,000

Newport, Isle of Wight, PO30

5 Bedroom Semi-Detached House for sale
£695,000
Property Type
Semi-Detached House
Bedrooms
× 5
Bathrooms
× 3
Tenure
Freehold
Price
£695,000

Key Features

  • Spacious semi detached family house on Newport’s outskirts
  • Modern open plan kitchen, dining and living spaces with garden access
  • Principal suite with Juliet balcony, dressing room and luxury en suite
  • Versatile top floor guest or teenager’s suite with countryside views
  • Wrap around garden, patio, and semi rural tranquillity with town convenience
  • Beautifully presented accommodation spread over three floors
  • Build zone guarantee and offered chain free

Description

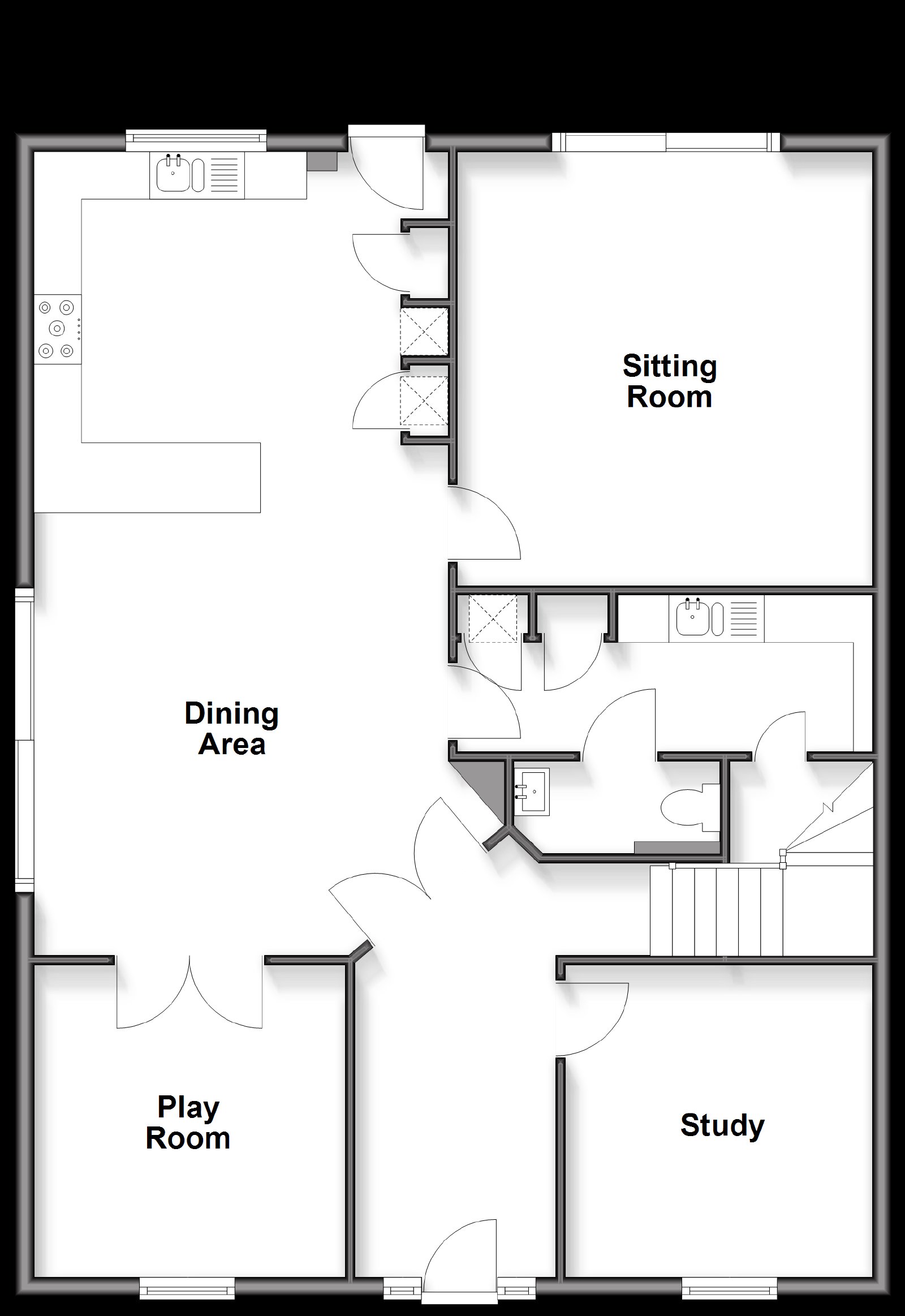
Nestled on the picturesque outskirts of Newport in a semi-rural setting, this substantial five-bedroom semi-detached home offers the perfect blend of countryside tranquillity and contemporary family living. Deceptively spacious and thoughtfully arranged over three floors, this impressive property provides exceptional versatility to accommodate the evolving needs of a modern family. Offered chain-free, it presents a rare opportunity to move seamlessly into a beautifully designed and well-appointed home. From the moment you step inside, the sense of space and light is immediately apparent. The welcoming hallway, enhanced by underfloor heating, creates an inviting first impression and sets the tone for the generous proportions throughout. The ground floor offers a seamless balance of open-plan family living and private retreat spaces. A versatile study to the front of the home provides flexibility for remote work. The heart of the property is undoubtedly the expansive kitchen and dining area, designed with both style and practicality in mind. Spanning over eight metres, this stunning space features a beautifully fitted modern kitchen with sleek wall, base, and drawer units, a shelved larder cupboard, and an array of integrated appliances including ovens, a built-in full height fridge, dishwasher, and a contemporary induction hob with extractor. The sociable layout makes it ideal for entertaining, with oversized glass doors opening out to the garden and flooding the room with natural light. Adjoining the kitchen is a cosy snug or nursery, accessed via glass-panelled doors, perfect for family relaxation or children’s play. A spacious sitting room at the rear of the home provides a comfortable retreat, featuring oversized windows that overlook the garden and underfloor heating for year-round warmth. A large utility room with matching cabinetry, a built-in freezer, and ample storage enhances everyday convenience, while a modern cloakroom completes the ground floor. Upstairs, the first floor continues the theme of space and comfort, offering four well-proportioned bedrooms. The principal suite is a true highlight, featuring oversized patio doors leading to a glass Juliet balcony, a dedicated dressing room, and a luxurious en-suite shower room with elegant tiling and built-in vanity storage. The family bathroom mirrors this sense of sophistication, boasting a freestanding feature bath, walk-in shower, and high-quality finishes throughout. The second floor reveals a superbly appointed bedroom suite, complete with two Velux windows, a large picture window offering scenic views, and an elegant en-suite shower room. This level could serve as a private guest suite, teenager’s retreat, or even an inspiring home studio. Outside, the property enjoys a wrap-around garden, mainly laid to lawn and complemented by a large patio area ideal for alfresco dining and summer gatherings. The semi-rural position provides a peaceful backdrop, while the outskirts of Newport ensure convenient access to local amenities, schools, and transport links. The property has parking at the front for numerous vehicles, as well as gated parking in the garden for boats or caravans. This exceptional home combines generous living spaces, refined finishes, and a versatile layout, all within a countryside setting.

Newport, Isle of Wight, PO30 on Map