For Sale2 Bedroom House in Southfield Road, North Kelsey, LN7 6PU£450,000

Southfield Road, North Kelsey, LN7 6PU

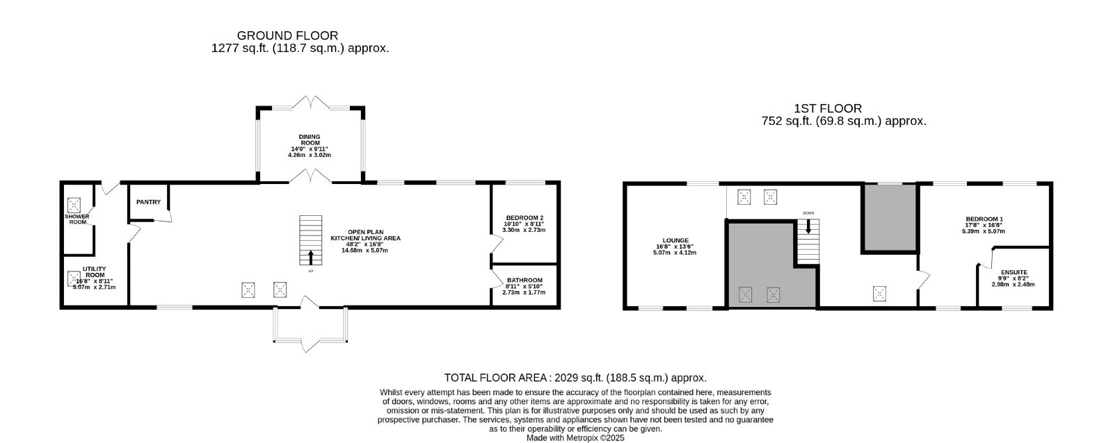
2 Bedroom House for sale
Asking Price: £450,000
Property Type
House
Bedrooms
× 2
Bathrooms
× 2
Receptions
× 3
Asking Price
£450,000

Key Features

  • Striking Barn Conversion in North Kelsey
  • Large Open Plan Living Space with Central Oak Staircase
  • Shaker Style Kitchen with Island and Integrated Appliances
  • Feature Brick Fireplace with Cast Biomass Wood Burner
  • Triple Aspect Garden Room
  • Ground Floor Bedroom and Bathroom
  • Utility/Boot Room with Vaulted Ceiling and Exposed Brickwork
  • First Floor Seating Area with Home Office
  • Principal Bedroom with Dressing Recess and Luxury En Suite
  • Solar Panels with Battery Storage

Resources

Description

Once a working agricultural building, Bruff Barn has been transformed by the current owner into a modern countryside home that retains the warmth and character of its origins. The conversion has been carried out with great attention to detail, blending exposed brickwork, vaulted ceilings, and traditional barn trusses with contemporary finishes, open plan living, and high quality fixtures. At its heart is a dramatic central staircase and galleried landing, setting the tone for a home that is both architecturally striking and highly practical. Designed with flexibility in mind, the layout already provides generous living and entertaining spaces, while offering scope to evolve further in the future. Bruff Barn is a property that not only celebrates its heritage but also delivers the comfort, efficiency, and versatility expected of modern living — including solar panels with battery storage and high-speed broadband, ensuring sustainability and connectivity in a rural setting. Step Inside Entering through the porch, you are immediately welcomed into a dramatic open plan living space that forms the heart of Bruff Barn. The first impression is unforgettable: an oak staircase with glazed balustrade rises gracefully to a galleried landing, creating a striking architectural centrepiece that sets the tone for the entire home. To the left, the kitchen combines timeless style with modern practicality. A range of cream shaker style units is paired with contrasting block oak work surfaces and high quality integrated appliances. At its centre, a substantial island with breakfast bar invites relaxed conversation, casual dining, or a glass of wine while entertaining. Adding both warmth and character, a feature brick fireplace houses a cast biomass wood burner, which not only provides a rustic focal point but also powers the home’s central heating system. To the right, the generous sitting area is designed for comfort and style, with French doors opening directly to the garden and a bespoke media wall crafted to accommodate a large screen and AV equipment. The proportions of this space allow for multiple seating arrangements, while the triple aspect garden room offers a light filled setting for formal dining, surrounded by views of the rear garden. The ground floor also provides a spacious bedroom with charming low sill arched windows, ideal for guests or single level living. A sleek, modern bathroom complements this space, while the utility/boot room — with its vaulted ceiling, roof window, and exposed brickwork from the original dairy — adds both practicality and character. A wet room with WC is strategically placed by the back door, alongside a plant room, ensuring the home is as functional as it is beautiful. First Floor Ascending the oak staircase, the galleried landing opens into a second living area, where vaulted ceilings and roof windows create a sense of drama and light. This versatile space is currently used as a seating and home office area, but its generous proportions mean it could be reconfigured to create additional bedrooms, offering flexibility for growing families or changing needs. On the opposite side, a second landing leads to the principal bedroom, complete with fitted furniture, a dressing recess, and charming window seats to both aspects — perfect for enjoying the views over open farmland. The luxurious en suite bathroom is finished to a high standard, complete with a freestanding slipper bath and separate shower. Step Outside To the front, a gravel courtyard provides ample parking, complemented by feature shrub beds and a turning area. To the rear, a fully enclosed garden offers a private retreat with lawn and patio, ideal for al fresco dining, summer entertaining, or simply enjoying the tranquillity of the countryside setting.

Southfield Road, North Kelsey, LN7 6PU on Map