For Sale5 Bedroom Detached House in Stringers Lane, Aston, SG2£1,150,000

Stringers Lane, Aston, SG2

5 Bedroom Detached House for sale
Guide Price: £1,150,000
Property Type
Detached House
Bedrooms
× 5
Bathrooms
× 4
Receptions
× 4
Tenure
Freehold
Guide Price
£1,150,000

Key Features

  • Contemporary designed detached family home
  • Five bedrooms
  • 3088 square feet of flexible accomodation
  • Arranged over three floors
  • Set behind electric gates
  • EPC rating B
  • External natural slate cladding and Iberian larch timber
  • Large basement area with external access
  • Heat and ventilation recovery system
  • London's kings cross easily accessed via Stevenage

Resources

Description

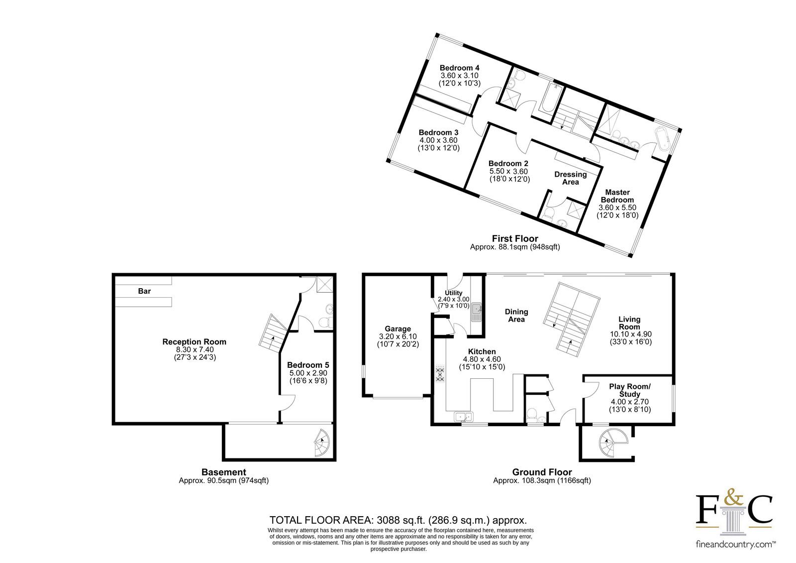
Step inside: The Ground Floor offers 1,166 square feet of space, which holds the kitchen, dining area, utility room & study, as well as access to both the garage and external grounds. This area is perfect for open plan living & entertaining, but also ideal for families with younger active children who need keeping an eye on, thanks to the 3 sets of large sliding glass doors opening up the rear of the house to the garden area. The kitchen is a German handleless Hacker Kitchen, with grey stone Quartz worktops, integrated Siemens appliances, and a well-positioned breakfast bar. Offering superb views to the front and rear, with ease of access to the utility room, garage and gardens. The basement offers just under 1,000 square feet and lends itself to a range of uses, whether you would like a cinema room, party room, guest accommodation, or a second reception room as the current vendors use it, the options are endless. In addition to this main space below ground, there is bedroom 5 with a private en-suite – currently being used as a work space by the vendors. This 5th bedroom again has the flexibility to be not only a totally private and separate to the main house guest bedroom, but could also be a work space / office or could even transformed into a home gym. The basement can also be accessed via spiral staircase located to the right of the glass bridge leading to the main front door on ground level, leading to an exterior courtyard area below ground. The glass bridge entrance and glass balustrades at ground level allow a substantial amount of natural light in to the basement level accommodation, further accentuated by 2 large sets of glass sliding doors, leading to both the basement reception room and basement bedroom. The First Floor is just under 1,000 square feet, accommodating 4 double bedrooms and a family bathroom. Bedroom 1, generously sized to fit a Super king bed with plenty spare space, benefits from fitted wardrobes and generously sized en-suite with standalone bath tub and a large walk-in shower. Bedroom 2 offers a dressing area with fitted wardrobes along with an en-suite shower room.  Step outside Set in manageable grounds of 0.15 acres, there is plenty of parking to the front of the property accessed via remote controlled electric gates. At the rear, there is a large patio area with mature trees providing ultimate privacy, as well as gated side access.   Location The village of Aston is known locally for its conviviality and, despite its modest size, offers a great many clubs, societies and interest groups, as well as hosting several very successful school fetes and several annual village activities. The semi-rural area is steeped in history with a beautiful ancient Norman church, a village pre-school for children from aged 2.5 years, as well as the very sought-after Ofsted rated “outstanding” Aston St. Mary’s Primary School. There are sports clubs including tennis, badminton, cricket, a large community recreation ground and pretty country public houses within walking distance. For golfers of all abilities, Stevenage Golf Club is only 0.4 miles away. For equestrians, Aston is considered an excellent location, known for its’ extensive off-road riding options, several local livery yards, and access to the wider Stevenage Bridleway System, giving significant equine dimension to locals, with Hooks Cross Equestrian Riding School only 1.4 miles away (for all abilities, children aged 6+). Close-by, Knebworth Village is easily accessible, and provides a rail link with frequent fast service to London Kings Cross (25 minutes). The main town of Stevenage is a few miles away, offering extensive shopping, sporting and recreational amenities, along with an excellent fast trainline into London Kings Cross (24 minutes).  Other information East Herts local authority Mitsubishi Ecodan air source heat pump and underfloor heating throughout EPC Rating B Mains drainage

Stringers Lane, Aston, SG2 on Map