For Sale4 Bedroom Detached House in Church Gate, Colston Bassett, NG12£1,000,000

Church Gate, Colston Bassett, NG12

4 Bedroom Detached House for sale
Offers Over: £1,000,000
Property Type
Detached House
Bedrooms
× 4
Bathrooms
× 4
Receptions
× 3
Tenure
Freehold
Offers Over
£1,000,000

Key Features

  • A superb development opportunity to create something very special in one of Nottinghamshire’s most sought after villages.
  • Full planning permission was granted in December 2025 to remodel and extend the existing property, allowed a purchaser to create a truly stunning and bespoke residence.
  • Rushcliffe Borough Council planning reference 25/01428/FUL
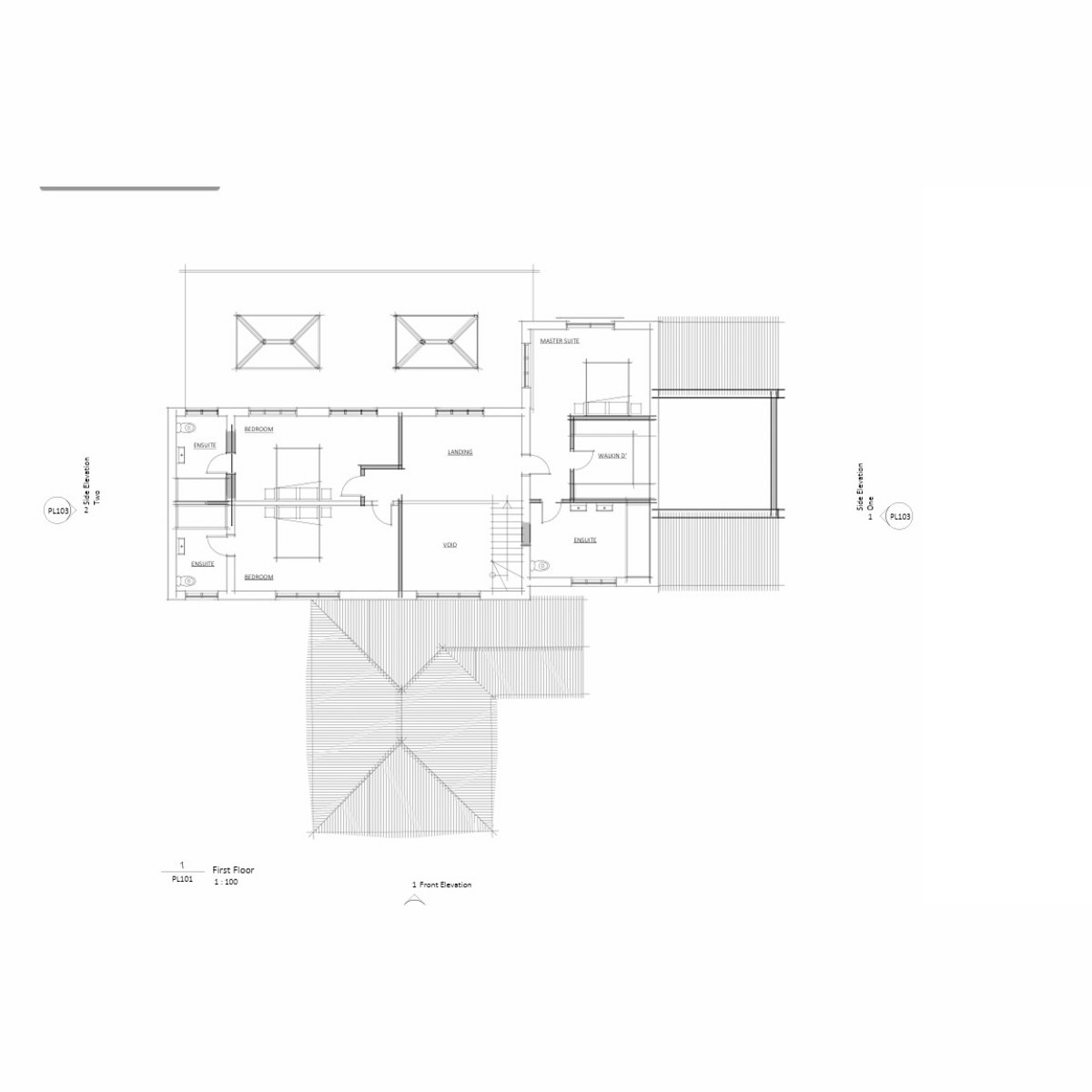
  • Versatile and striking accommodation will extend to approximately 4200 sq. ft, with a stunning oak framed garden room to the rear.
  • Delightful south facing gardens and attached garaging/carport. Existing gardens have been well maintained and enhanced, with a superb plot extending to approximately 0.45 acres.
  • Preliminary works have already taken place to the existing dwelling, allowing for an immediate start.
  • Viewing highly recommended to appreciate this rare and unique opportunity, suitable to developers or owner occupiers.
  • Viewing by appointment with Fine & Country.

Resources

Description

WHITES BEAMS A superb development opportunity to create something very special in one of Nottinghamshire’s most sought-after villages. Full planning permission was granted in December to remodel and extend the existing property, allowed a purchaser to create a truly stunning and bespoke residence. Versatile and striking accommodation will extend to approximately 4200 sq. ft, with a stunning oak framed garden room to the rear. Accommodation over two floors will provide impressive open plan living, four bedrooms and four bathrooms, as well as useful practicalities. Delightful south facing gardens and attached garaging/carport. Existing gardens have been well maintained and enhanced, with a superb plot extending to approximately 0.45 acres. Preliminary works have already taken place to the existing dwelling, allowing for an immediate start. Viewing highly recommended to appreciate this rare and unique opportunity, suitable to developers or owner occupiers. PLANNING PERMISSION GRANTED Full planning permission was granted in December 2025 to extend and remodel the existing property. Rushcliffe Borough Council planning reference 25/01428/FUL - Proposed Single Storey Side and Rear Extension, External Alterations Including Timber Cladding, Internal Reconfiguration, Brick Piers with Timber Gate, Estate Fencing, and Formation of New Driveway COLSTON BASSETT Colston Bassett is one of Nottinghamshire’s most highly regarded villages set to the south of the county being well placed for ease of access into West Bridgford and the City of Nottingham. Within the village is the renowned Martin’s Arms pub as well as the award winning Stilton dairy and the Colston Bassett Independent Preparatory School serving ages 4 to 11. More comprehensive schooling facilities are available in the nearby villages of Cropwell Bishop, Cotgrave and the market town of Bingham. The village is well known for its lively community spirit with a number of social clubs and sporting clubs including a village cricket team and croquet club with events taking place all year round. The village is strategically well placed for the Region’s commercial and retail centres with fast road access to main centres including Nottingham, Leicester and Lincoln. The recently improved A46 dual carriageway is also within easy reach which opens onto further road networks including the A52, M1 and A1 motorways as well as Nottingham East Midlands Airport. For those wishing to travel by rail the East Coast Mainline at Grantham is available close by. VIEWING By appointment with Fine & Country.

Church Gate, Colston Bassett, NG12 on Map