For Sale3 Bedroom Detached House in Cottered, Nr Buntingford£750,000

Cottered, Nr Buntingford

3 Bedroom Detached House for sale
Guide Price: £750,000
Property Type
Detached House
Bedrooms
× 3
Bathrooms
× 2
Receptions
× 3
Tenure
Freehold
Guide Price
£750,000

Resources

Description

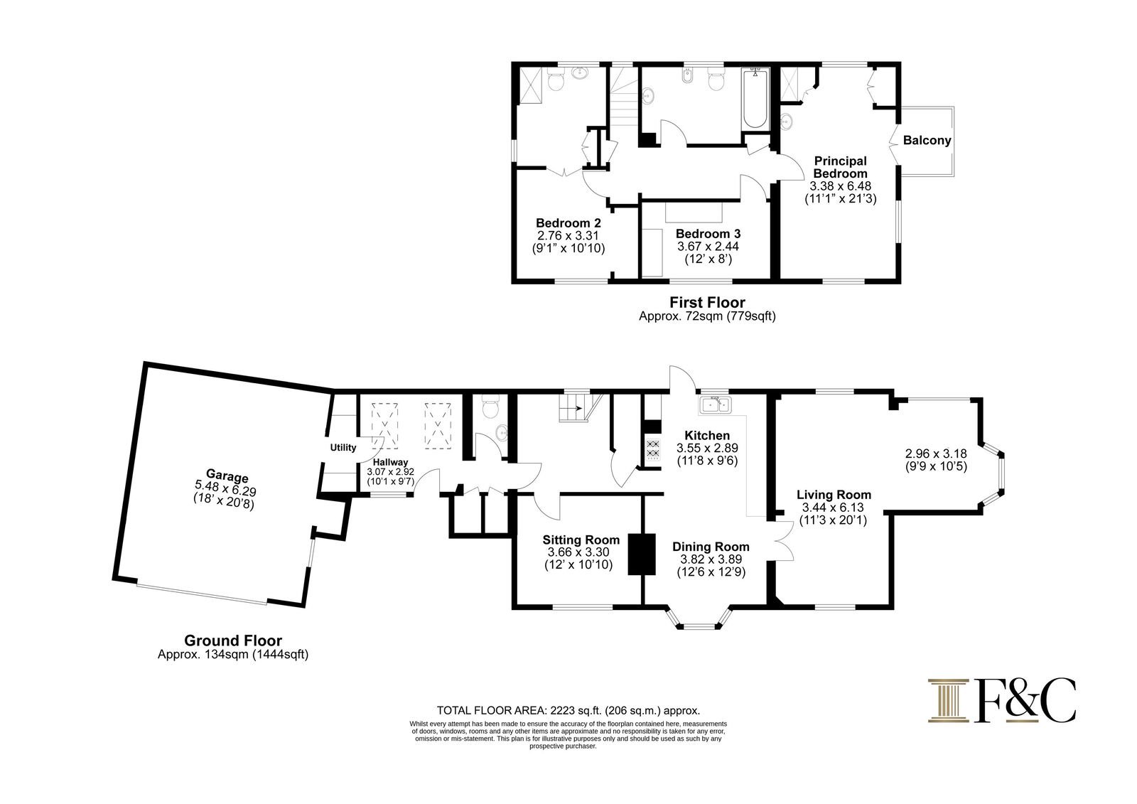
A beautifully presented detached character house enjoying generous room sizes and views over countryside. Situated on the Baldock Road as one leaves the village, Peartree Cottage offers a home of great charm and character and yet is so well placed for those wishing to enjoy village life yet be within a few minutes drive of the neighbouring towns of Buntingford and Baldock. The present owners have improved the property in recent years and Peartree Cottage now offers a comfortable family home that sympathetically blends the original features with a refitted kitchen/family room and two large modern bathrooms. Offering flexible accommodation together with scope to extend into the large loft space in the future if one wished to do so.  LOCATION The village of Cottered is high regarded and sought after with a friendly community centred around the active village hall, the village green and cricket field, St John the Baptist church, and the popular and highly regarded Bull public house and restaurant. The neighbouring towns of Buntingford and Baldock are both within easy reach and offer more extensive amenities. The A10 and A1m also offer excellent connections to the North and South including the M25. For the commuter, stations at Stevenage (11 miles), Baldock (6 miles) and Royston (11 miles), all offer fast and frequent services into London's Kings Cross and to Cambridge. The surrounding area offers a great many attractions with lovely country walks, golf courses, pretty villages and sports clubs / facilities. There is also a great range of schooling both state and private. STEP INSIDE The front door opens into a large inviting hallway that is filled with light via the two Velux roof lights. Off the hallway one finds a nicely appointed downstairs wc and a utility lobby that in turns leads into the large double garage. There is a further spacious inner hallway with stairs leading up to the first floor and a useful storage cupboard beneath. A cosy snug is found at the front of the house with an attractive fireplace with wood burning stove. A lovely room equally ideal as a study or snug. In the centre of the house one finds the heart of the home, the kitchen/dining/family room. Well fitted with a good range of units with granite worktops, glazed back lit wall cupboards and tiled surrounds. Double glazed door and window to the rear and a double glazed bay window to the front aspect. There is an attractive redbrick fireplace/chimney breast and plenty of space for the breakfast table and for family and friends to congregate. Glazed double doors open into the living room. A lovely large and bright triple aspect room with double glazed windows and patio doors opening onto the garden.  Moving upstairs is a landing off which are the bedrooms and the large family bathroom. The main bedroom is a good size double room with fitted wardrobes, bespoke fitted cupboards including a wash basin and a walk in shower cubicle. There are double glazed windows to the front, side and rear and doors open out onto the balcony. A lovely spot to sit with a coffee on a summers day. Across the landing one finds another large double bedroom with spacious en suite bathroom. The third bedroom is a generous single/small double room with fitted wardrobes. The large family bathroom is particularly impressive with bath, bidet, wc and the wash basin set into a vanity unit. Off the landing a drop down ladder provides access to a generous loft space that could be converted to provide further accommodation if desired. STEP OUTSIDE To the front the driveway provides parking for three cars and access to the double garage. The gardens wrap around the house on three sides and are easily maintained and attractively planted with climbing roses, wisteria and clematis.  Mainly hard landscaped with a small lawned area the garden has a Mediterranean feel to it and is ideal for entertaining where you can enjoy the privacy and the views over countryside. There is a pergola and a small summer house and the oil storage tank and oil fired boiler can be found tucked away to the front of the house.  GENERAL INFORMATION Local authority: East Herts DC 01279 655261.  Council Tax Band: G.  All mains services are connected except for gas.  Oil fired central heating by radiators.  EPC rating: E

Cottered, Nr Buntingford on Map