For SaleLand in Lund Close, Barnsley, S71 5PF£140,000

Lund Close, Barnsley, S71 5PF

Land for sale
£140,000
Property Type
Land
Bathrooms
× 1
Tenure
Freehold
Price
£140,000

Key Features

  • Buy It Now Option Available
  • Buyer's Fees Apply
  • Being Sold By GOTO Online Auction
  • Land with planning permission
  • Perfect for investors
  • Freehold
  • Starting bids £140,000

Resources

Description

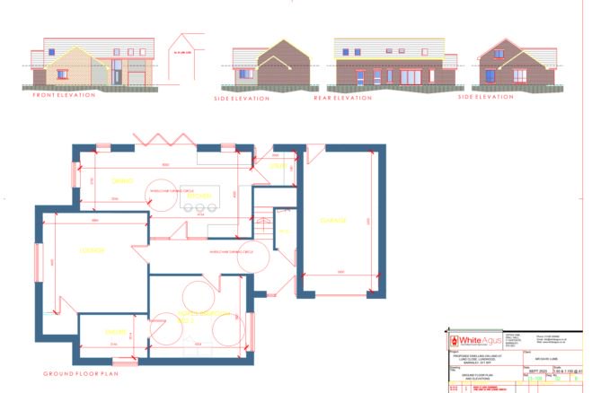
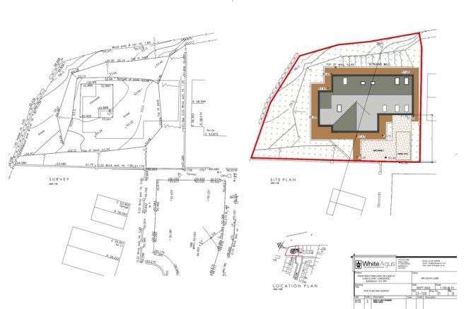
Land with Planning Permission for Dormer Bungalow A fantastic opportunity to acquire a plot of land with full planning permission granted for a substantial dormer bungalow. Situated in a desirable location, this site offers the chance to build a modern, bespoke home tailored to your own needs and lifestyle. The approved plans provide for a spacious and well-designed layout, with modern living on the ground floor and three large bedrooms and a family bathroom upstairs. One of the upstairs bedrooms could be divided to create a fourth bedroom if desired, offering great flexibility for growing families or home working. This is not a typical downsizer’s property — the proposed bungalow is generously proportioned, both in footprint and layout, making it ideal for those seeking the comfort of single-level living with the space of a large family home. We recommend reviewing the full plans and comparing to neighbouring homes and bungalows to fully appreciate the size and scope of this exceptional opportunity. Located close to local amenities, schools, and excellent transport links, the site provides both convenience and the potential for a truly stunning new home. Opportunities like this are rare – whether you’re an individual looking to create your dream property or a developer seeking your next project, this land with planning permission is not to be missed. Being Sold by GOTO Online Auction Starting Bids from £140,000 Buy it now option available Please call or visit Purplebricks Online Auctions for more information. This property is for sale by Online Auction. This property is for sale by Online Auction. The Online Modern Method of Auction is a flexible buyer friendly method of purchase. The purchaser will have 56 working days to exchange and complete once the draft contract has been issued by the vendors solicitor. Allowing the additional time to exchange and complete on the property means interested parties can proceed with traditional residential finance.

Lund Close, Barnsley, S71 5PF on Map