For Sale2 Bedroom Mews House in Woodstock Mews, London W1g£3,795,000

Woodstock Mews, London W1g

2 Bedroom Mews House for sale
Asking Price: £3,795,000
Property Type
Mews House
Bedrooms
× 2
Bathrooms
× 3
Tenure
Leasehold
Asking Price
£3,795,000

Key Features

  • Property attributes: Mews
  • Tenure: Leasehold
  • Energy efficiency rating: D
  • Lease expires: 09 2937
  • Total sq ft: 1,854
  • Carter Jonas reference: MLB070149

Resources

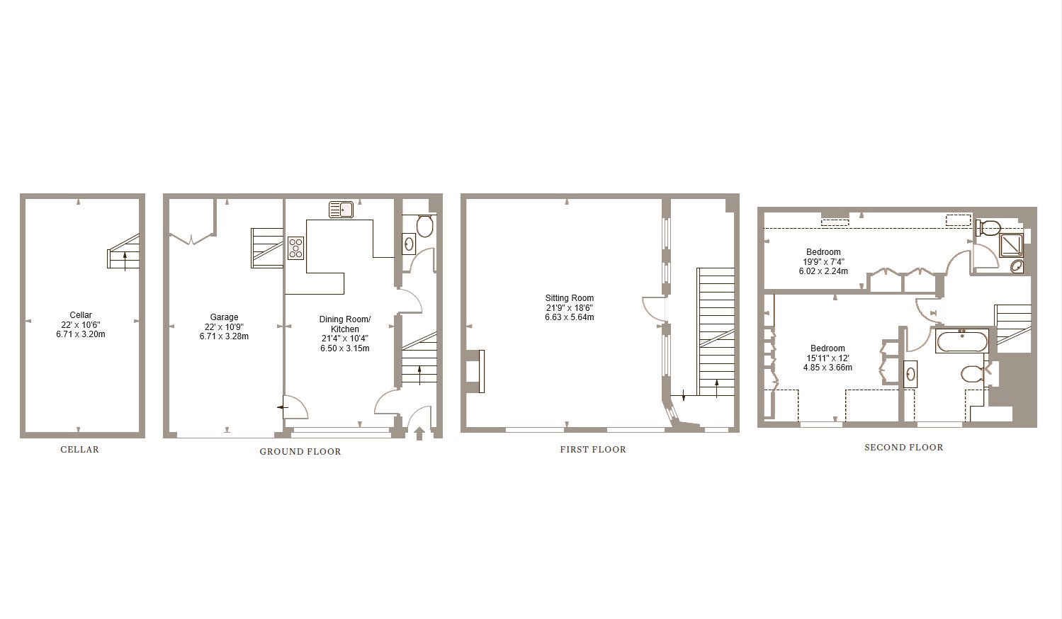
Description

Stunning two-bedroom mews house offering luxurious contemporary interiors, extensive entertaining space and private garage. The ground comprises of an open plan kitchen / dining area, guest WC and large garage with a cellar underneath. Occupying the entire of the first floor is the bright west facing reception room flooded with natural light. Going on up to the second floor is the principle bedroom with built in wardrobes and ensuite bathroom. A further second double bedroom with an ensuite shower room. This incredible mews house offers further potential to create an additional basement floor and potentially to add a roof garden above the bedrooms all subject to planning permission. Woodstock Mews is wonderfully positioned in a small mews moments from Marylebone High Street. . The transport links are excellent with Bond Street tube station being approximately 0.5 miles away.

Woodstock Mews, London W1g on Map