For Sale4 Bedroom Bungalow in Rectory Lane, Emley, HD8 9RR£700,000

Rectory Lane, Emley, HD8 9RR

4 Bedroom Bungalow for sale
Offers Over: £700,000
Property Type
Bungalow
Bedrooms
× 4
Bathrooms
× 3
Receptions
× 4
Tenure
Freehold
Offers Over
£700,000

Key Features

  • 1/4 of an Acre Approx
  • Amazing Cross Valley Views
  • Spacious 4 Bedroom Bungalow
  • Planning Permission to Extend
  • Private Setting
  • Sought After Location
  • Open Countryside on the Doorstep
  • Local Services & Amenities
  • Highly Regarded Schools
  • M1 Access, Bus & Train Services Direct link to the Capital

Resources

Description

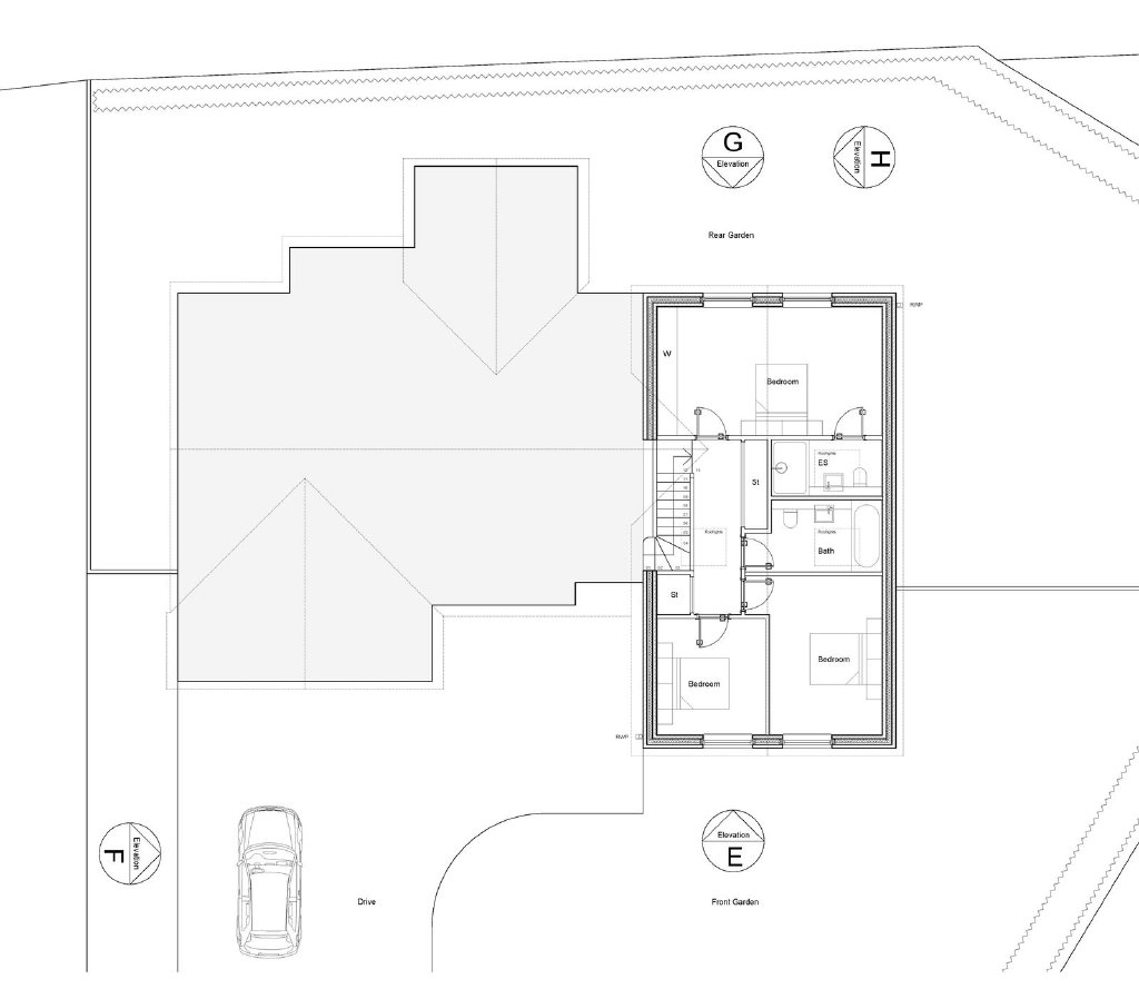
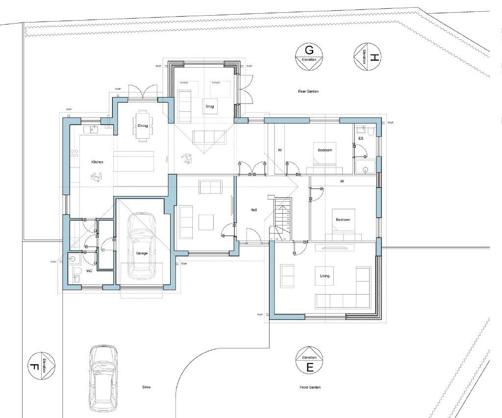
An exceptional home which occupies a delightful position, private grounds approaching ¼ of an acre, commanding stunning countryside views, enjoying an idyllic rural village location and having planning permission for additional ground and first floor accommodation. An individually designed and built property; a true bungalow offering spacious accommodation, a breakfast kitchen seamlessly linking to the dining room, a generous lounge with garden room, cinema / home office, large entrance hall, four double bedrooms, two with en-suite facilities, and a family bathroom. Set in privately enclosed gardens, and all with the benefit of a stunning panoramic view to the rear over adjoining grazing land, Emley Moor Mast, and the surrounding countryside. The property has the added benefit of planning permission, which, if desired, would add a second storey, create an amazing open plan living area with further family space, and add a fifth bedroom.  This beautiful home enjoys the most idyllic rural village location, positioned on the fringe of glorious open countryside resulting in an enviable outdoors lifestyle. Local services are easily accessed, and the property is highly commutable situated central to a number of major commercial centres whilst being within a short drive from the M1 motorway network. Ground Floor An entrance door with full height windows to either side opens directly into the reception hall. The lounge offers generous accommodation, has a bow window to the front overlooking the garden, internal twin doors opening directly into the garden room at the rear of the property, capturing a glimpse of open countryside beyond and ensuring excellent levels of natural light into the room which has a feature fireplace to the chimney breast with a cast-iron inset, limestone surround, and granite hearth, all home to  an inset living flame gas fire. The adjoining garden room has windows to three aspects, all capturing amazing views of the surrounding countryside, French doors opening onto the garden Terrace. The breakfast kitchen and dining room are positioned adjoining one another, naturally offering sociable entertaining space, the dining room having an oak floor with a window to the rear and door opening onto the rear gardens. The breakfast kitchen has an oak floor, windows to two aspects, the rear commanding stunning whilst a comprehensive range of kitchen furniture is complemented by black granite work surfaces incorporating a drainer with an inset stainless steel sink unit. A contrasting workstation has an oak surface with cupboards beneath whilst a complement of appliances includes an integral oven with microwave convection oven over, a four-ring hob with concealed extractor, a dishwasher, fridge and freezer, and plumbing for a concealed automatic washing machine. The adjoining utility has a range of useful storage cupboards and gains access to a cloakroom presented with a three-piece suite including a shower. A lobby divided access from the utility to the integral garage. A home cinema room or snug is positioned off the dining room, offers versatile accommodation and would make an excellent home working space or playroom. The principal bedroom suite occupies a rear facing position with a window capturing amazing cross valley views over adjoining countryside. The room has fitted wardrobes and en-suite accommodation that is presented with a three-piece suite. A second en-suite bedroom also positioned to the rear aspect has French doors opening directly onto a flagged garden terrace, captures stunning views, has an engineered oak floor and an en-suite presented with a low flush W.C and a pedestal wash and basin. To the front aspect of the property, a double bedroom has a bow window directly overlooking the front garden whilst then fourth bedroom has a window overlooking the garden to the side of the property, the room offering double proportions with fitted wardrobes to one wall. The family bathroom is presented with a four piece suite finished in white consisting of a shower with a curved glass screen and body jets, a corner bath and a vanity unit incorporating both a wash hand basin and a W.C; the room having complementary tiling to the walls and floor, a window and a heated chrome towel radiator. Externally To the front aspect of the property, privately enclosed behind a wall and hedged border, a generous garden is laid to lawn and enjoys a south facing aspect. A driveway is accessed via a sliding electric gate and offers off road parking for several vehicles. The garage has a remote controlled electric door, lighting and power. The lawn extends to the side and is once again privately enclosed whilst the rear garden is lawned with a patio and low-level hedged borders ensuring a stunning outlook over open countryside. The garage has an electric door, lighting and power and a loft hatch with drop-down ladder providing access to a useful storage area above. Additional Information A Freehold property with mains gas, water, electricity and drainage. Council Tax Band – E. EPC Rating - D. Fixtures and fittings by separate negotiation. Planning permission has been granted for the removal of the garden room to be replaced with a single storey rear extension, and the erection of a second storey front extension with enlarged gable elevation to create first floor accommodation. Planning application number 2024/62/93349/E Directions On entering Emley on either Chapel Lane or Upper Lane, turn on to Church Street which becomes Rectory Lane. The property is on the left hand side. 1967 & MISDESCRIPTION ACT 1991 - When instructed to market this property every effort was made by visual inspection and from information supplied by the vendor to provide these details which are for description purposes only. Certain information was not verified, and we advise that the details are checked to your personal satisfaction. In particular, none of the services or fittings and equipment have been tested nor have any boundaries been confirmed with the registered deed plans. Fine & Country or any persons in their employment cannot give any representations of warranty whatsoever in relation to this property and we would ask prospective purchasers to bear this in mind when formulating their offer. We advise purchasers to have these areas checked by their own surveyor, solicitor and tradesman. Fine & Country accept no responsibility for errors or omissions. These particulars do not form the basis of any contract nor constitute any part of an offer of a contract.

Rectory Lane, Emley, HD8 9RR on Map