For Sale5 Bedroom Detached Farm House in Lot 1: East Farm, Purving Row Bs24£550,000

Lot 1: East Farm, Purving Row Bs24

5 Bedroom Detached Farm House for sale
Guide Price: £550,000
Property Type
Detached Farm House
Bedrooms
× 5
Tenure
Freehold
Guide Price
£550,000

Key Features

  • Additional attributes: Secondary Accomodation
  • Property type: House
  • Tenure: Freehold
  • Total land: 2.8 acres
  • Carter Jonas reference: TAU250086

Resources

Description

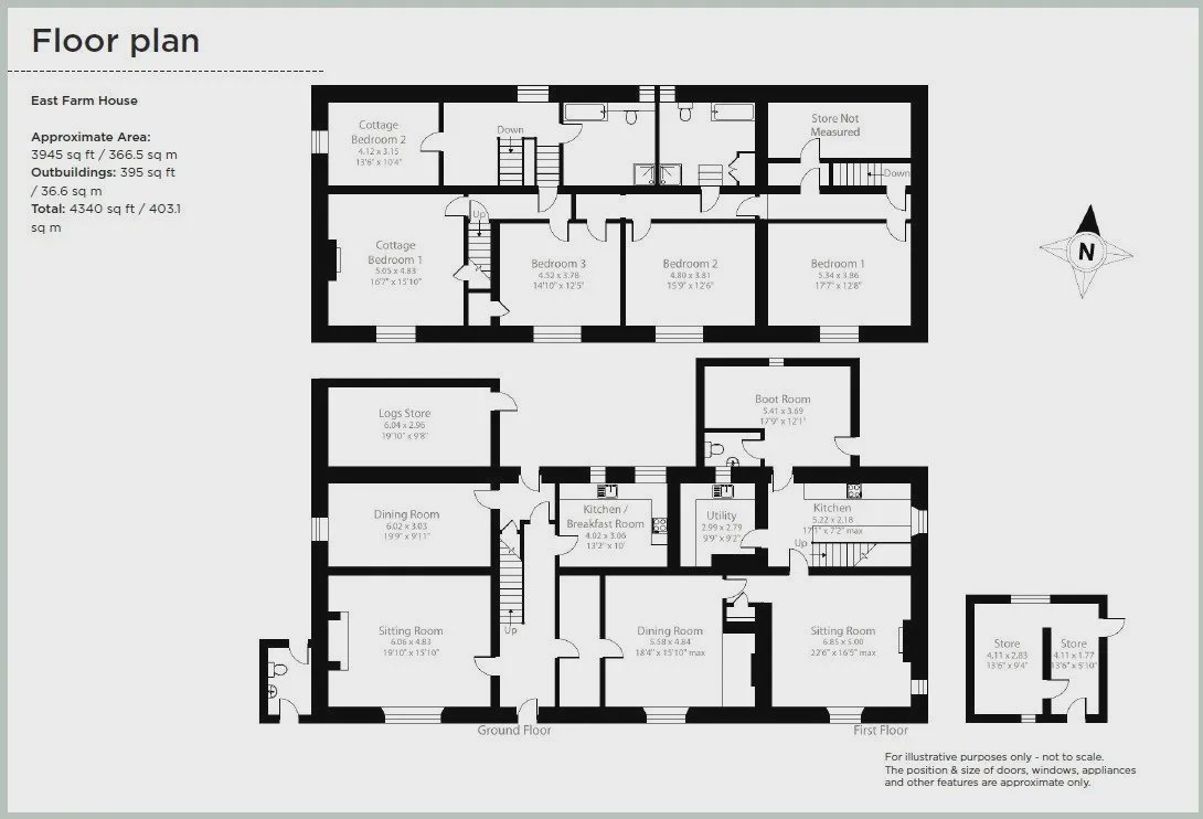
East Farm offers a detached Grade II Listed 3-bedroom farmhouse and adjoining 2-bedroom cottage for modernisation along with a small CL caravan site. Extending to 2.80 acres. Further lots available. Best offers due by midday on Tuesday 16th December 2025. Lot 1: East Farmhouse, East Farm Cottage, Caravan Site, Orchards, and Paddocks. In all, 2.80 acres. East Farmhouse comprises a brick and tile farmhouse offering accommodation comprising, on the ground floor, of boot room/utility room with WC off. Kitchen with stairs to first floor. Sitting room with open fireplace. Dining room with wood burning stove. Connecting door to cottage. On the first floor there are three double bedrooms together with a family bathroom, serviced by a spacious landing with a door through to the adjoining cottage. East Farm Cottage adjoins the farmhouse to the west and offers accommodation comprising, on the ground floor, large entrance hall with flagstone floor, doors to kitchen, East Farmhouse, sitting room, and front garden. Kitchen with dining room opposite. Sitting room with log burning stove. External log store. On the first floor there are two double bedrooms and a family bathroom with landing with inter-connecting door to the farmhouse. Outside, at the front of the farmhouse and cottage is a lawned and partially walled garden with several mature trees including a very attractive oak and a bay tree. To the rear of the farmhouse is a stone and tile store with an adjoining timber and galvanise store and there is a large driveway providing ample parking. The Land - Lot 1 Situated within the traditional orchard/paddock to the west of the farmhouse is a small caravan site which is a Certificated Location (CL) site with the Caravan and Motorhome Club for up to five caravans/motorhomes. There are three no. double electric hook-ups on the site together with a WC. In addition to the ‘CL’ site, there is a further orchard to the south and two paddocks south of the garden. In all, Lot 1 extends to 2.80 acres. Location East Farm is located a short distance from the sought after village of Lympsham, close to Weston-super-Mare and Burnham-on-Sea. Lympsham offers a church, primary school, village hall, and Post Office, as well as tennis courts and a cricket pitch with the Lympsham Pavilion now a popular village social venue. A wider range of services are available in Weston-super-Mare and Burnham-on-Sea. There is easy access to the M5 motorway at Junction 22, with railway links at Weston-super-Mare, and Highbridge. Method of Sale The property is offered for sale by private treaty as a whole or in up to five separate lots. Tenure & Possession The freehold of the property is offered for sale with vacant possession available upon completion. Listing Status East Farmhouse and Cottage are Grade II listed. Covenants The agricultural land will be sold subject to a covenant to use the land for agricultural, equestrian, horticultural and/or forestry purposes. Services The property is serviced by mains water and electricity with private drainage comprising a package treatment plant. East Farm Cottage has mains gas fired central heating. Wayleaves Easements & Rights of Way The property to be sold subject to, or with the benefit of all Wayleaves, Easements, Quasi Easements, Rights of Way, Covenants and Restrictions whether mentioned in these particulars or not. Health & Safety Potential purchasers should take particular care when inspecting the property, being mindful of machinery and livestock movements, especially in and around the farm buildings, as well as the open rhynes along the field boundaries. EPC Ratings East Farmhouse has an EPC rating of F. East Farm Cottage has an EPC rating of D. Local Authority Somerset Council www.somerset.gov.uk Viewings Viewings are by appointment with the vendor’s selling agents, Carter Jonas, on 01823 428590. Directions From Junction 22 of the M5 motorway, head north on the A38 towards Weston-super-Mare. At the East Brent roundabout, take the first exit onto the A370 towards Weston-super-Mare. After about one mile, turn right signed Eastertown. Then take the next right onto Purving Row. The entrance to East Farm will be found on the right-hand side. Continue on for Lot 2/the farm buildings, and Lot 3. Lots 4 and 5 are situated to the south of the A370. What3Words Lot 1: /// orange.juggles.video

Lot 1: East Farm, Purving Row Bs24 on Map