For SaleLand in Railway Terrace, Rugby, Warwickshire Cv21 3ez£575,000

Railway Terrace, Rugby, Warwickshire Cv21 3ez

Land for sale
Guide Price: £575,000
Property Type
Land
Tenure
Freehold
Guide Price
£575,000

Key Features

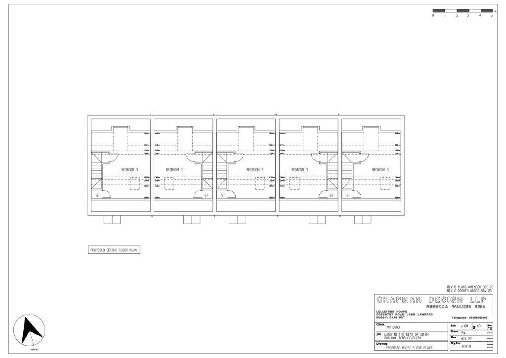
  • Fully consented development site with approved planning (Ref: R23/1115) — ready to start immediately.
  • Prime town centre location just moments from Rugby station and key commuter routes (M1, M6, A45, A5, A14).
  • Proven high demand area with strong sales and rental performance, ideal for investor confidence.
  • Well balanced scheme: 5 three bedroom townhouses plus 4 modern apartments with broad market appeal.
  • Attractive design with private parking, including undercroft access and a secure walled courtyard.
  • Strong GDV potential — new build homes in this area command impressive end values.
  • Freehold with vacant possession, offering a clean and efficient route to development.
  • Highly deliverable, commercially sound project in a supply restricted town centre setting.

Resources

Description

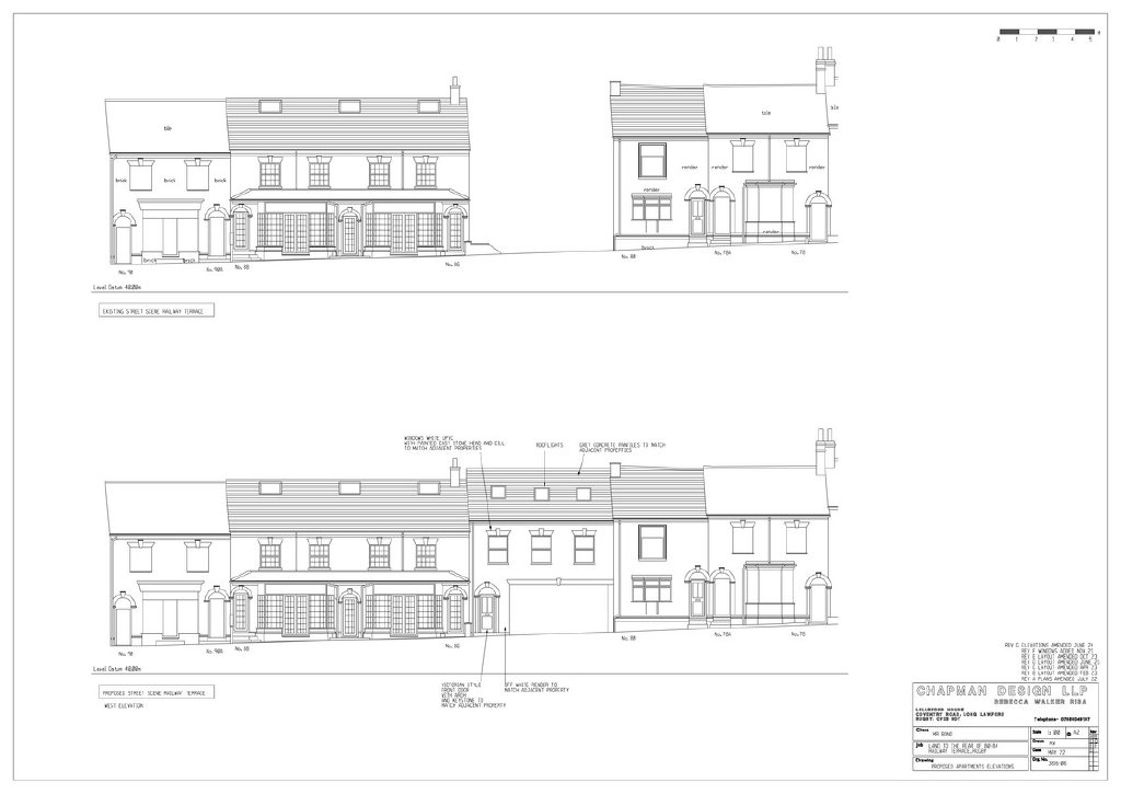
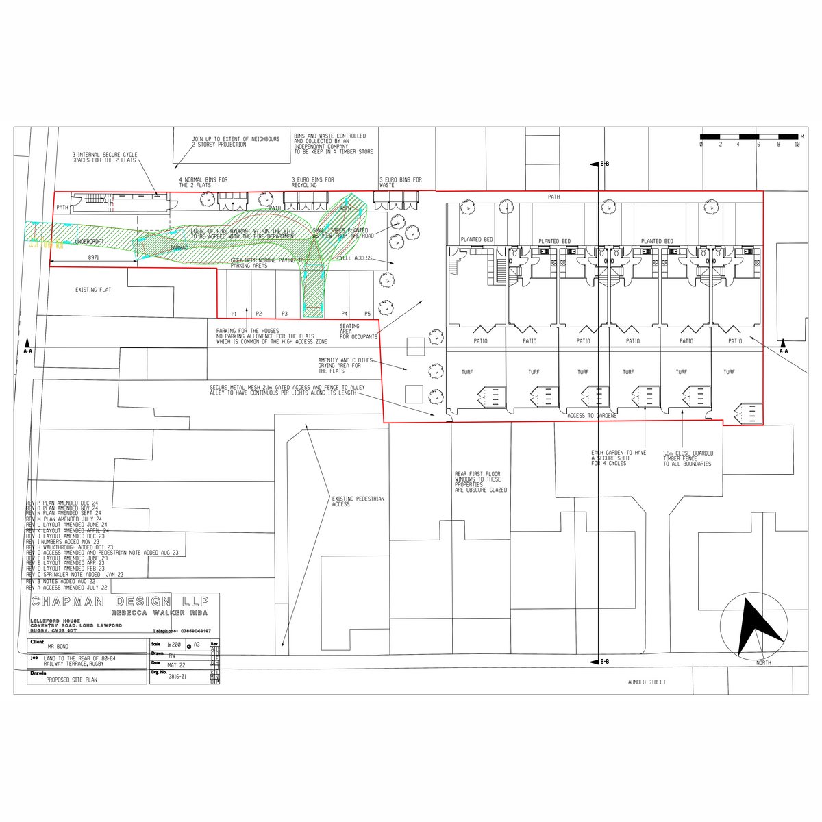
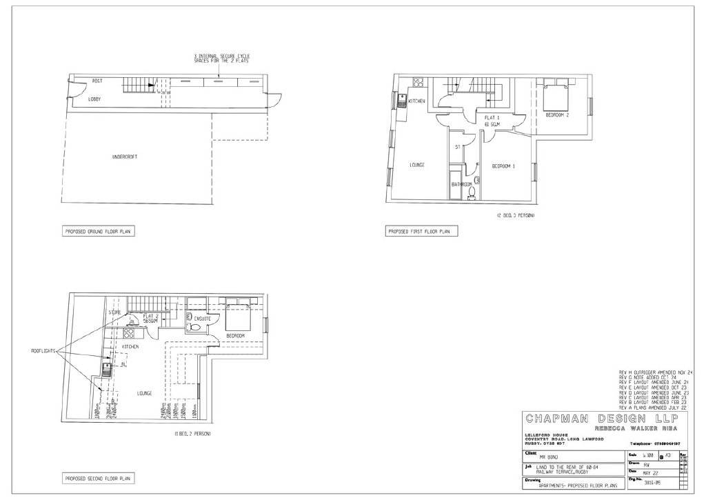
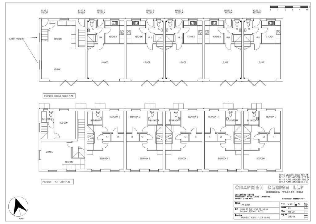
INVESTMENT OPPORTUNITY: Prime Residential Development Site with Full Planning. Positioned just moments from Rugby town centre, this fully consented development site represents an exceptional opportunity for builders, developers, and residential investors looking for a high-yield scheme in a proven location. Rugby continues to attract strong demand from both commuters and renters thanks to its excellent connectivity. With direct rail services to London Euston, Birmingham, Northampton and easy access to the M1, M6, A45, A5 and A14, this is a market where quality new homes perform consistently well — both in resale and rental markets. THE DEVELOPMENT Planning consent (Ref: R23/1115) has been granted for a well-balanced, highly saleable scheme comprising: 5 three-storey, three-bedroom houses (approx. 90.5 sqm / 974 sq ft each) 4 modern apartments ranging from 56–61 sqm (608–656 sq ft) The design includes an attractive frontage onto Railway Terrace, featuring two apartments, with a smart undercroft access through to private parking and the rear terrace of five houses plus an additional two apartments. A walled rear courtyard provides dedicated parking — an increasingly valuable feature for both resale and rental appeal in this area. WHY THIS IS A STRONG FINANCIAL DEAL Immediate development potential — full planning is already secured, reducing lead-time and risk. A highly deliverable scheme — strong unit mix with broad market appeal (ideal for first-time buyers, downsizers, and commuters). Strong local demand — Rugby consistently outperforms regional averages for both sales velocity and rental demand. Attractive GDV potential — New-build 3-bed homes and modern apartments in this area command impressive end values, offering scope for strong returns. Freehold with vacant possession — clean title, ready for commencement. This is exactly the type of scheme that offers excellent margin potential for a builder-developer who wants a manageable, commercially sound project in a supply-restricted town centre location. LOCATION The site sits between Murray Road and Church Street, giving superb access into Rugby town centre and the surrounding amenities. The proximity to the station ensures commuter appeal, while the broader road network links the town efficiently to Birmingham (approx. 35 miles) and Coventry (13 miles). GUIDE PRICE £650,000 for the freehold interest with vacant possession. Offers are invited. Tenure: Freehold | EPC: TBC | Council Tax Band: TBC Services, Utilities & Property Information Tenure – Freehold. Local Authority – Rugby Borough Council. Broadband – FTTP Ultrafast Broadband connection available in the area - we advise you to check with your provider. Mobile Signal/Coverage – 4G and 5G mobile signal is available in the area - we advise you to check with your provider. Parking – Allocated parking. Special Notes – The land is not currently connected to mains services. Mains utilities are believed to be available locally, but prospective purchasers should make their own enquiries. The land is split over multiple titles. The land is subject to historic restrictive covenants, rights and arrangements. Full planning for 5 houses and 4 apartments. Please speak with the agent for more information. Planning – Full planning details can be viewed on the Rugby Borough Council planning portal. Please search using reference R23/1115. https://planning.agileapplications.co.uk/rugby/application-details/38882 For more information or to arrange a viewing please contact Graham Lee.

Railway Terrace, Rugby, Warwickshire Cv21 3ez on Map