For Sale4 Bedroom Bungalow in 'Christies' Albury End, Nr Ware, SG11£1,250,000

'Christies' Albury End, Nr Ware, SG11

4 Bedroom Bungalow for sale
Offers in Region Of: £1,250,000
Property Type
Bungalow
Bedrooms
× 4
Bathrooms
× 3
Receptions
× 3
Tenure
Freehold
Offers in Region Of
£1,250,000

Key Features

  • Substantial Detached Bungalow
  • Gardens in excess of an acre
  • Wonderful views
  • Four double bedrooms, two en suite
  • Three reception rooms
  • Kitchen/breakfast room, utility room and boiler room
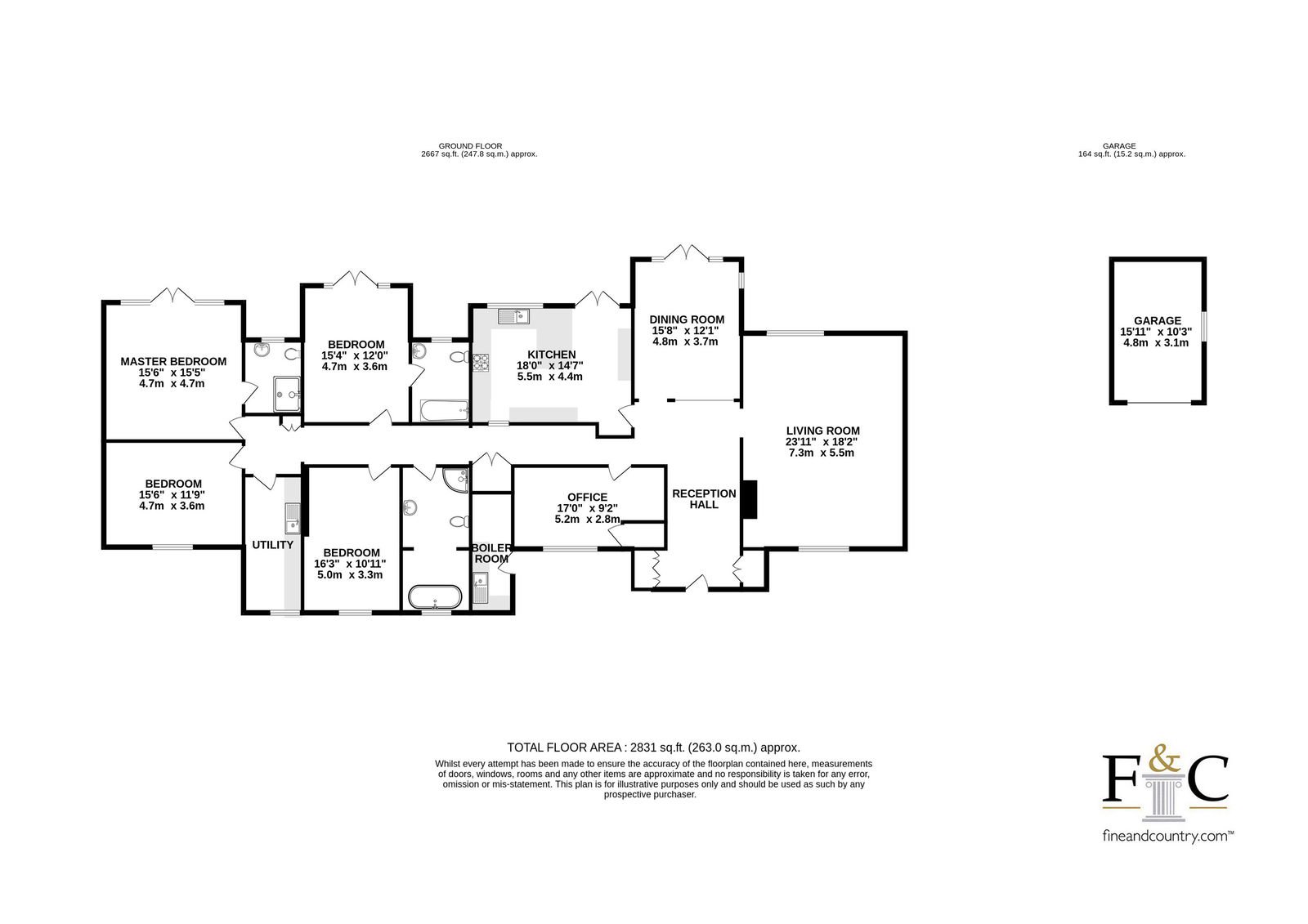
  • Approximately 2800 sq'
  • Great scope to improve and extend
  • Chain Free

Resources

Description

A substantial detached bungalow enjoying a large plot of over an acre with wonderful views over fields to the rear and only a few minutes drive to both Ware and Bishops Stortford. Offering large, well presented and well proportioned accommodation, this fine home provides an excellent opportunity for those wishing to put their own stamp on a property and take full advantage of the scope and potential on offer. The flexible accommodation provides four double bedrooms, two en suite, together with three large reception room and a family sized kitchen/breakfast room, utility room and a boiler room. STEP INSIDE An arched covered porch and front door with glazed screens leads into the spacious and impressive hallway. The hallway allows access to all the principle rooms with fitted cloaks cupboard and a boiler room off. The living room is a large double aspect room with wood burning stove and fine views to the rear over the garden and fields beyond. To the rear of the property one finds the dining room with Parquet flooring and French doors opening onto the gardens. The kitchen/ breakfast room provides an extensive range of wall and base level units with terracotta style tiled floor, built in oven and hob and space for appliances. A lovely bright kitchen with double doors opening into the garden. Across the hallway one finds a useful utility / laundry room and an office/playroom/5th bedroom. The principle and guest suites are both good size double bedrooms each en suite and have doors opening to the gardens. Both of these rooms have lovely far reaching views. There are two further double bedrooms and a family bathroom. STEP OUTSIDE Sitting toward the front of a mature, large plot of just over an acre in size with rolling lawns, mature trees and borders, the gardens back onto fields with far reaching views over the surrounding countryside. To the rear of the bungalow is a paved patio where one can sit and entertain whist enjoying the view. To one side is a hard tennis court and to the front a driveway with plenty of parking and a single detached garage.  LOCATION Albury is a spread-out rural village comprising of six hamlets, Church End, Albury End, Clapgate, Patmore Heath, Gravesend & Upwick Green. The make-up of the village, apart from residential, is generally arable farming.  In the local area one finds St Marys church, fantastic walks, a primary school and an excellent village hall. Bishops Stortford is just 4 miles away where you will find everything you will need from schools, shops, and restaurants. Additionally there is the Bishops Stortford Train Station with fast trains to London Liverpool Street/Tottenham Hale. The charming market town of Ware is some 8 miles away and there is an excellent choice of both state and private schooling in the surrounding area including Bishops Stortford College, St Edmunds College, Heathmount, Haileybury and Hockerill school. Stansted Airport is also within 15/20 minutes drive.. Local golf, spa and sporting facilities like Hanbury Manor Golf & Spa and Bishops Stortford, East Herts, Great Hadham and Ash Valley golf clubs are all within a short drive. GENERAL INFORMATION Local Authority: East Herts DC. Council tax band: G  Mains water and electricity are connected. Oil fired central heating by radiators. Private drainage. The property is being sold with no upward chain

'Christies' Albury End, Nr Ware, SG11 on Map