For Sale5 Bedroom Land in Land at Mount Avenue, Hutton Mount, Brentwood Cm13£1,700,000

Land at Mount Avenue, Hutton Mount, Brentwood Cm13

5 Bedroom Land for sale
Guide Price: £1,700,000
Property Type
Land
Bedrooms
× 5
Bathrooms
× 5
Receptions
× 4
Tenure
Freehold
Guide Price
£1,700,000

Key Features

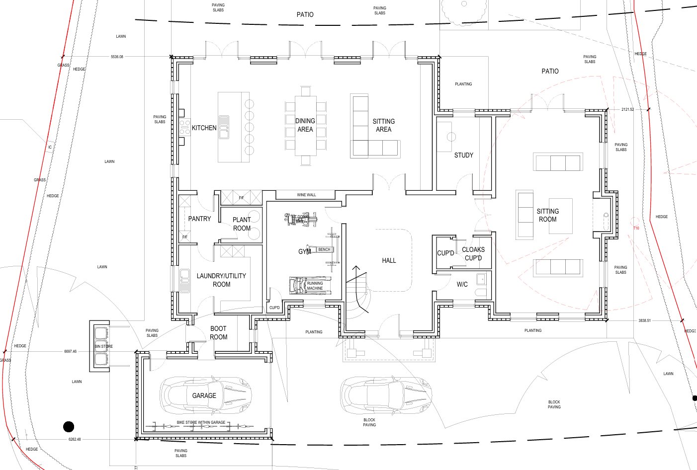
  • Prime Building Plot 0.3 acre
  • Planning Granted for substantial detached residence
  • Hutton Mount location
  • Build option available
  • Three storey high spec design
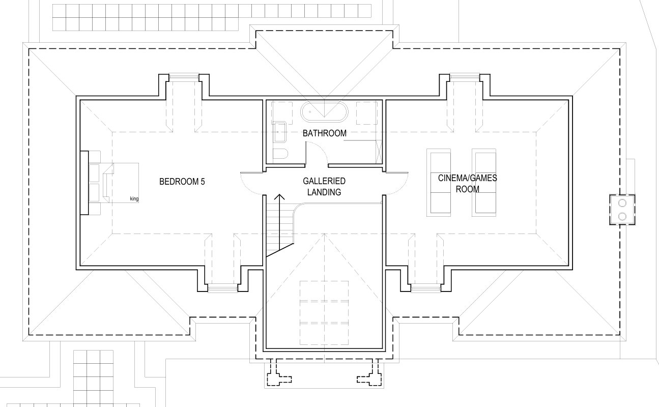
  • Five double bedroom suites
  • Games Room & Gym
  • Gated entrance and garaging
  • Walking distance Shenfield Station
  • CREATE YOUR OWN BESPOKE HOME

Description

An outstanding opportunity to acquire a prime plot of land in one of Essex’s most prestigious residential locations. Located on the highly sought-after Hutton Mount private estate, this plot presents a rare chance to create a bespoke home with planning already approved, in a setting renowned for its spacious plots and premium properties. This will appeal to both developers and self-builders alike, with the plot very reasonably priced it allows for plenty of earning potential for developers as well as a great opportunity for any self-builder to build their dream, bespoke home. There is also the option of a joint venture with the vendor whereby they would build the property for the purchaser. Planning granted for a high-spec detached residence over three levels with five bedrooms suites, games room, galleried landing, gym and extensive living/entertaining space. Designed by renowned local Architect Andrew Davison. Access from Mount Avenue into gated driveway and garaging. Nestled in Hutton Mount, one of Brentwood’s most desirable and affluent neighbourhoods, this plot benefits from the area’s exclusive semi-rural appeal, tree-lined private roads, generous plot sizes and high quality surrounding homes. The character of the estate is defined by its low density and landscaped environment, offering privacy and a tranquil setting while still being conveniently close to key transport links and amenities. Excellent Transport Connections with Shenfield main line station on your doorstep, offering fast and frequent rail services to London Liverpool Street (approx. 22–23 minutes) and via the Elizabeth Line, providing direct access across central London, the West End and Heathrow Airport, ideal for commuters and international destinations. Road connections are excellent with close access to the A12 and M25, linking you quickly to London and the wider South East. Outstanding Education Options: Hutton Mount and the wider Brentwood area are known for excellent schooling choices, making this location particularly attractive to families. Creative Kids Day Nursery is within easy walking distance and Little Acorns, part of Woodlands School at Hutton.  Other local primary schools nearby including Shenfield St. Mary’s CE Primary School. Secondary education is also well served with St Martin’s School and Shenfield High School both rated positively.  Also renowned independent schools including Brentwood School, the Anglo European School at Ingatestone and Brentwood Ursuline with Grammar Schools including KEGS at Chelmsford and in Southend. Local Amenities & Lifestyle: Hutton Mount offers both peaceful residential living and convenient access to local services. Just a short distance away, Shenfield Broadway and Brentwood High Street boast a vibrant range of boutiques, supermarkets, cafes, restaurants and local services. The area benefits from parks, open spaces and scenic walking routes, including nearby open countryside and numerous green spaces for outdoor leisure and family activities. Community spirit and privacy are strong features of the estate, which is supported by private estate management and security measures. Why This Plot? Exclusive Setting: Positioned on a private estate coveted by professionals and families alike, seldom do plots like this come to market in Hutton Mount. Design Freedom: The generous plot size offers pre-approved planning to build an executive 5 bed residence with the flexibility to put your own stamp on it internally. Investment Potential: Hutton Mount is one of Essex’s most prestigious pockets, with seven-figure properties commonplace, with strong long-term value. Summary This plot represents a stand-out opportunity in a premier residential setting. With exceptional transport links, excellent schools, charm and character in abundance, and proximity to thriving local amenities, it’s the perfect canvas for a discerning buyer to create a stunning family home in a highly sought after location. Planning Granted by Brentwood Borough Council Ref: 24/00735/FUL. Images shown are CGI produced - external finishes could vary, depending on preference (subject to planning conditions).

Land at Mount Avenue, Hutton Mount, Brentwood Cm13 on Map