For Sale3 Bedroom Apartment in Burntwood Lane, Caterham, CR3£975,000

Burntwood Lane, Caterham, CR3

3 Bedroom Apartment for sale
Guide Price: £975,000
Property Type
Apartment
Bedrooms
× 3
Bathrooms
× 2
Receptions
× 1
Tenure
Freehold
Guide Price
£975,000

Key Features

  • Hamptons Beach Style Contemporary Detached Residence
  • Large Open Plan Kitchen/Lounge/Dining with Three Sets of Sliding Doors
  • Far Reaching & Green Views to Both Front & Rear
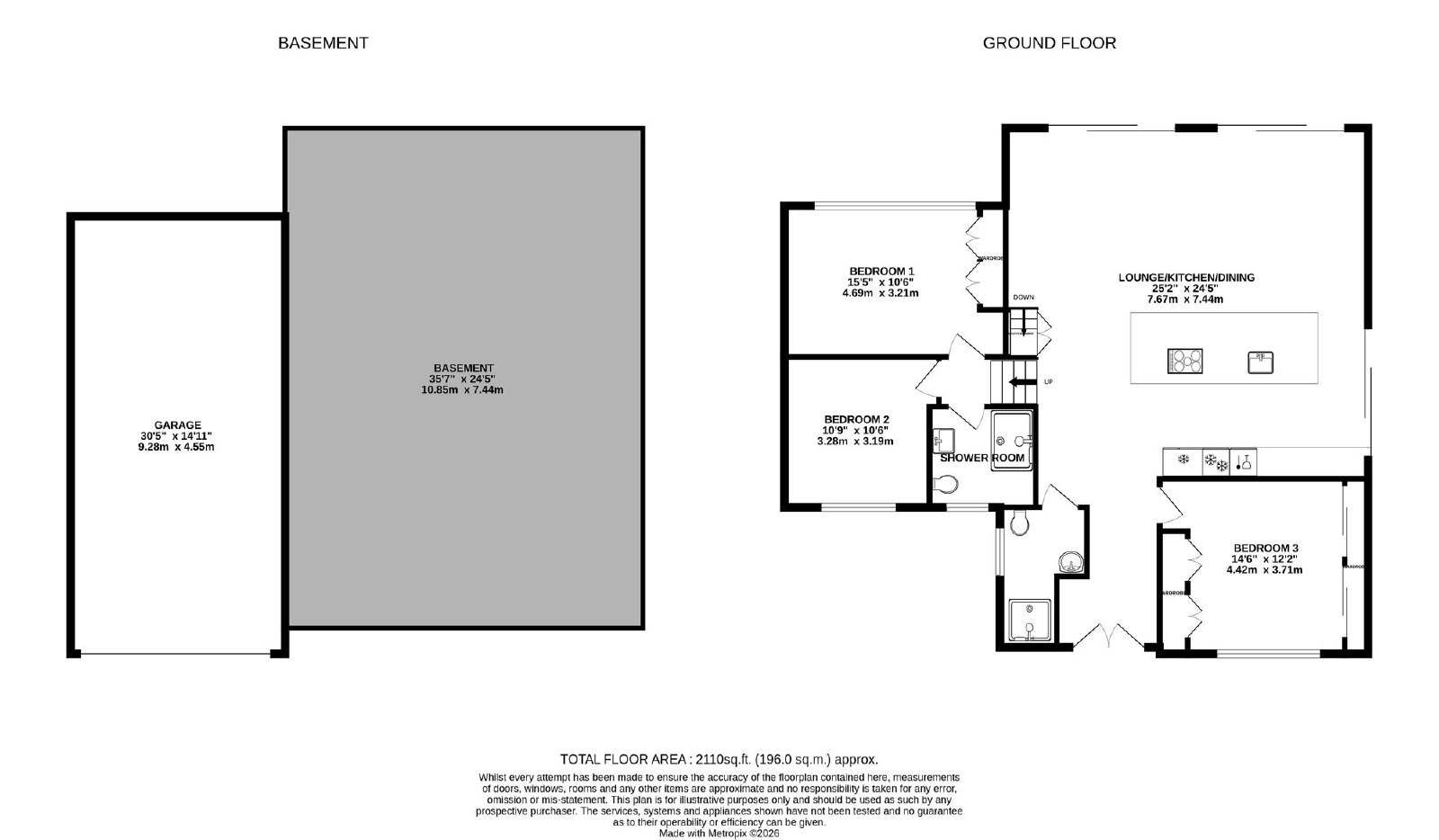
  • Scope For Further Accommodation to the Cellar Area
  • Re Fitted Bathroom & Shower Room with Mandarin Stone Tiles
  • Large Garage & Ample Off Road Parking
  • Amtico Flooring & Media Unit

Resources

Description

Fine & Country are proud to offer for sale, this distinctive, split level home with 3 double bedrooms, 2 bathrooms, which has been thoughtfully styled around the concept of a Hamptons beach house meets loft apartment, creating a light, contemporary feel with a relaxed yet refined atmosphere throughout. One of the standout features of the home is its exceptional position. To the rear, the property enjoys far-reaching views across Woldingham, while to the front there are open outlooks towards Manor Park, providing a rare dual aspect that brings a feeling of space and connection to the surrounding landscape. The current owners have created a magnificent home, created by a multi award winning architect. Newly fitted contemporary sash windows to the front and double newly fitted ‘Crittel’ front door, set the tone of this lovingly restored house on entry. Internally, the property benefits from Amtico flooring running throughout, enhancing the sense of flow and modern living while remaining practical and hard-wearing. Comfort and efficiency have been carefully considered, with cavity wall insulation and a boiler installed just two years ago, offering peace of mind and improved energy performance. The heart of the home is the stunning open-plan kitchen, living and dining space, designed for both everyday living and large-scale entertaining. A striking four-metre kitchen island with stone worktops anchors the space, while the beautifully hand-painted wooden kitchen combines timeless style with modern practicality. Features include a double oven, gas hob, integrated dishwasher, built-in pantry and American fridge/freezer, making this a kitchen that is as functional as it is impressive. The living space is flooded with natural light, enhanced by three sets of sliding doors opening onto both the side and south-facing rear terrace. This seamless indoor-outdoor connection allows the space to be enjoyed year-round, with a sun awning providing shade on warmer days while taking full advantage of the breathtaking views beyond. A bespoke media wall with built-in television and ambient lighting creates a stylish focal point within the living area. The bedrooms are equally well considered, with the principle featuring wall-to-wall sliding wardrobe cupboards, offering excellent storage while maintaining a clean, contemporary finish. The accommodation is served by two newly fitted bathrooms, both finished to an exceptional standard. A shower room features Mandarin Stone tiles, a bowl sink, WC and a walk-in rain shower with contemporary black trim, while the separate bathroom offers a wide vanity sink, stand-alone bath and a matching black-trim rain shower, fully tiled in Mandarin Stone for a cohesive, luxurious feel. Additional highlights include column radiators throughout, enhancing the modern aesthetic, and excellent future potential. From the lounge, a discreet hatch and staircase leads down to a full-size cellar, offering scope for further accommodation or leisure space if required. A good-sized loft also presents further conversion potential, subject to the usual consents. Externally, the property benefits from an integral garage accommodating two cars or more, fitted with a new electric garage door, with direct access to the dry basement spanning the entire ground floor. To the front, the generous driveway provides parking for up to seven vehicles, ideal for families or those who enjoy entertaining. To the rear, the south facing garden extends to approximately 90’, bordered by mature hedging and laid to lawn, offering complete seclusion. This is a home that effortlessly combines architectural presence, thoughtful design and future flexibility — perfectly suited to buyers seeking space, style and standout features in a premium setting. Energy Efficiency Current: 61.0 Energy Efficiency Potential: 82.0

Burntwood Lane, Caterham, CR3 on Map