For Sale2 Bedroom Apartment in Rudduck Way, Cambridge Cb3£475,000

Rudduck Way, Cambridge Cb3

2 Bedroom Apartment for sale
Guide Price: £475,000
Property Type
Apartment
Bedrooms
× 2
Bathrooms
× 2
Tenure
Leasehold
Guide Price
£475,000

Key Features

  • Era: Modern
  • Parking available: Off Street Parking
  • Locality: Town/City
  • Tenure: Leasehold
  • Energy efficiency rating: B
  • Lease expires: 02 2268
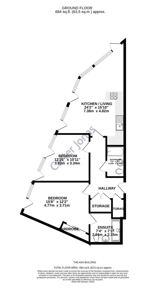
  • Total sq ft: 684
  • Carter Jonas reference: CAH260046

Resources

Description

Recently refurbished, stylish and modern two-bedroom apartment in a sought-after Eddington development with the benefit of a private balcony and allocated parking. Recently refurbished, stylish and modern two-bedroom apartment in a sought-after Eddington development with the benefit of a private balcony and allocated parking. - Ofsted rated outstanding Primary School –Approx. 0.2 miles - Cambridge City Centre – approx. 2 miles - Cambridge Train Station – approx. 2.1 miles - The River Cam / The Backs – approx. 2.5 miles • Light & spacious open-plan living/dining area • Contemporary kitchen with fully integrated appliances • Private balcony accessed from living area • Principal bedroom with fitted wardrobes & en-suite shower room • Second double bedroom • No onward chain • EPC rating B Description: This stylish apartment offers a welcoming entrance hall with a useful storage cupboard housing the washer/dryer, leading through to a spacious open-plan living and dining area. The contemporary kitchen is fully integrated with quartz work surfaces and includes a dishwasher, fridge-freezer, oven, and hob, providing a sleek and practical cooking space. The living area opens directly onto a private balcony, perfect for outdoor seating. The principal bedroom benefits from fitted wardrobes and stylish en-suite shower room, while a second double bedroom is served by a stylish family bathroom with a shower over the bath. Finished to a high standard, the apartment features Amtico flooring and underfloor heating throughout. Additional benefits include a secure allocated parking space, well-maintained communal areas, and convenient access to local amenities and transport links. This property presents an ideal opportunity for first-time buyers, professionals, or those looking for a modern home in a highly desirable location. Location: Eddington is ideally situated for those seeking easy access into Cambridge city centre, just approximately 2 miles away, making it an easy 10–15 minute drive or a short cycle ride. Also within the catchment area and 1 minute walk of the University of Cambridge Primary School. The development benefits from excellent transport connections, with the A14 and M11 motorway junctions only a few minutes’ drive, and frequent bus services into the city centre within walking distance. Local amenities are close at hand, including a Sainsbury’s superstore, a selection of cafés and restaurants. Additional Information: Tenure: Leasehold with approximately 242 years remaining. There is no ground rent payable. Service Charge: Approx. £3,500 per annum. This is a total amount payable to two management companies. Services: There is underfloor heating throughout, with hot water provided centrally to all Eddington buildings. Mains water, drainage and electricity. Note, none of these have been tested by the agent. Local Authority: Cambridge City Council Council Tax: Band D Viewings: Strictly by telephone appointment with the Selling Agents, Carter Jonas 01223 403330

Rudduck Way, Cambridge Cb3 on Map