For SaleProperty in Thornaby Road, Thornaby, Stockton-on-Tees£455,000

Thornaby Road, Thornaby, Stockton-on-Tees

Property for sale
Offers in Region Of: £455,000
Property Type
Property
Offers in Region Of
£455,000

Key Features

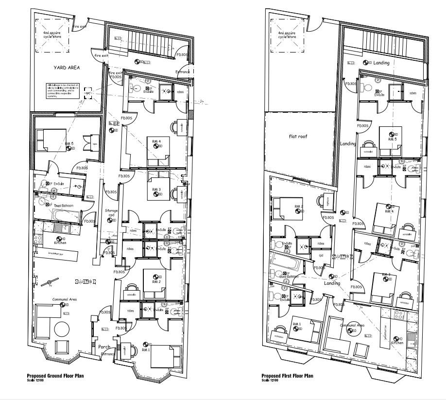
  • High Quality Residential Investment providing a turn key opportunity
  • 2 x 5 Bed Cluster apartments
  • 10 x double en suite bedrooms
  • Comprehensively refurbished
  • May suit a variety of residential uses subject to consent: SA/ assisted living/ co living/ HMO/ student

Resources

Description

High Quality Residential investment refurbished to provide 2 x 5 double bedroom cluster apartments providing 10 en-suite bedrooms. The property was comprehensively refurbished in 2015 (approx.) and is presently owned and operated as serviced accommodation for the contractor markets. The property may suit a variety of residential uses such as serviced accommodation / assisted living/ co-living / HMO / student subject to any necessary approvals or consents

Thornaby Road, Thornaby, Stockton-on-Tees on Map