For Sale5 Bedroom Barn Conversion in Corton, Lowestoft, Suffolk£650,000

Corton, Lowestoft, Suffolk

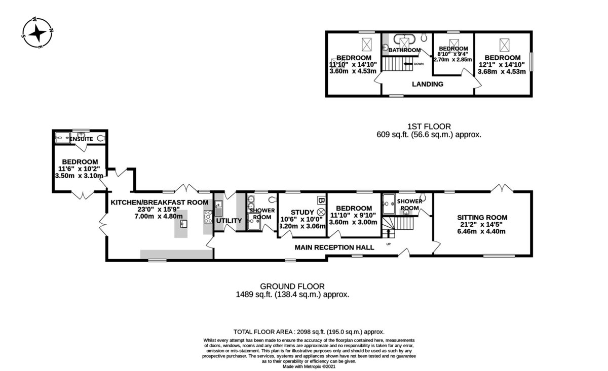
5 Bedroom Barn Conversion for sale
Guide Price: £650,000
Property Type
Barn Conversion
Bedrooms
× 5
Bathrooms
× 4
Guide Price
£650,000

Key Features

  • A Beautifully Presented Detached and Spacious Barn Conversion located in Corton with Rural Views
  • Just a Short Drive to the Local Beaches
  • Five Bedrooms and Four Bathrooms
  • Large Open Plan Style Kitchen
  • One Large Reception Room Opening out to the Garden and Rural Views
  • An Ideal Low Maintenance Main Residence but also Second Home or Holiday Let
  • Off Road Parking
  • The Accommodation extends to 1,489sq.ft
  • Full New Build Warranty
  • New Large Double Cart Shed in the Process of being Built

Resources

Description

*** NO ONWARD CHAIN ***A beautiful barn conversion with great flexibility, completed with style and flair. Far reaching views stretch out over fields with a tranquil feeling out in the fresh air. The best of both worlds with easy access to amenities, the Broads and the beach just a short drive away. This barn so attractive is an excellent all-rounder, as main residence or holiday home, somewhere you’ll want to stay.

Corton, Lowestoft, Suffolk on Map