For SaleBarn in Long Barn, Gwern-y-Domen Farm Caerphilly Cf83 3dg£275,000

Long Barn, Gwern-y-Domen Farm Caerphilly Cf83 3dg

Barn for sale
Guide Price: £275,000
Property Type
Barn
Tenure
Freehold
Guide Price
£275,000

Key Features

  • Barn with planning permission granted
  • Approved plans for a four bedroom detached home
  • Additional two junior suite apartments offering income potential
  • Parking provision included within the plans
  • Elevated position with beautiful countryside views in the sought after village of Rudry

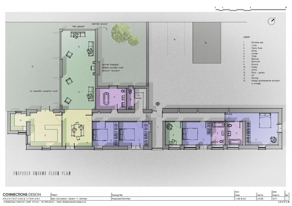
Description

An exceptional opportunity to acquire a barn with planning permission already granted for the creation of a substantial four-bedroom detached residence alongside two junior suite apartments. The approved scheme offers an exciting chance to transform the existing structure into a bespoke countryside development, ideal for those seeking a unique self-build project or a developer looking to capitalise on the growing demand for high-quality rural homes and holiday accommodation. The proposed plans include a spacious four-bedroom home designed to maximise its countryside setting, along with two separate junior suite apartments that could provide an attractive additional income stream. Parking is incorporated within the plans, ensuring practicality while maintaining the character and charm of the rural surroundings. Positioned to take advantage of its elevated outlook, the site enjoys beautiful views across the surrounding countryside, creating a peaceful and picturesque environment that perfectly complements the proposed development.

Long Barn, Gwern-y-Domen Farm Caerphilly Cf83 3dg on Map